Eladó Lakás Veresegyház - Táncsics Mihály utca

62 m2Alapterület 2 Szoba
69 990 000 Ft Ár
393038Azonosító
További adatok

Kertre néző Kilátás

Felújított Állapot

Tégla Szerkezet

5 m2 Erkély/terasz

Hőszivattyú Fűtés

Összkomfort Komfort

Saját beálló Parkolás

Emelet 1

Legfelső emelet

Nincs Lift

Tömegközlekedés

Amerikai konyhás

Van Kertkapcsolat

1980 Építés éve

Délnyugati Tájolás

Hitelkalkuláció – a részletekért kattintson valamelyik bank logójára!

Felújítás alatt álló, kertkapcsolatos lakások eladók Veresegyházon!

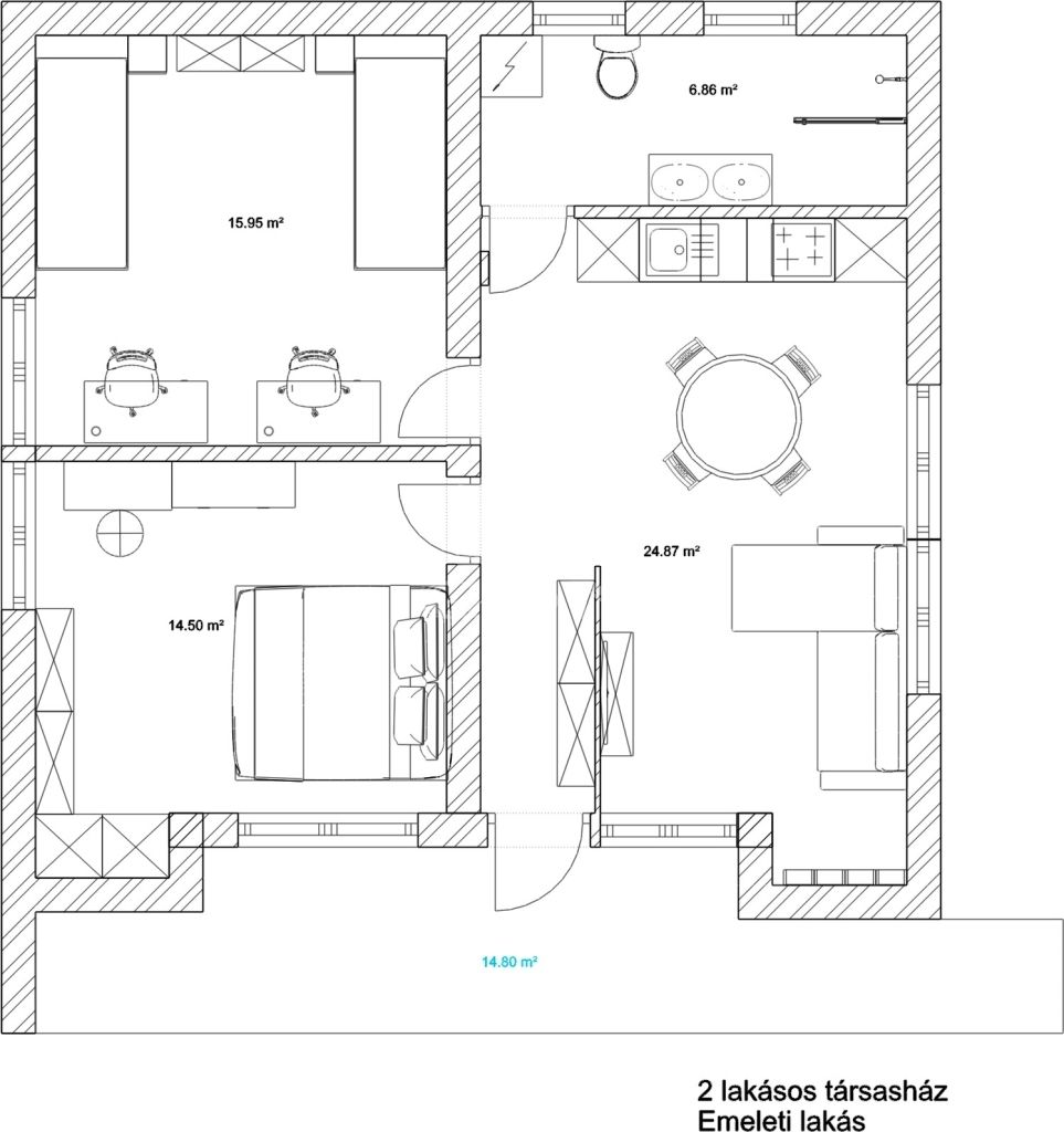
Eladásra kínálok egy kétlakásos társasház földszinti és emeleti lakását Veresegyházon, a vasúti megálló közelében, csendes, jól megközelíthető környezetben.

Az ingatlan egy 400 m²-es telken helyezkedik el. A ház teljes körű felújítás alatt áll:
✔ új tetőszerkezet
✔ 10 cm külső hőszigetelés
✔ modern, energia hatékony műszaki megoldások

Várható költözés: 2026. április

Műszaki tartalom:

• hőszivattyús rendszer
• teljes padlófűtés
• klíma minden lakásban
• korszerű, energia hatékony kialakítás

Kertkapcsolat:

Mindkét lakáshoz kb. 200 m² saját kertrész tartozik.
A kerítés a ház sarkával egy vonalba kerül kialakításra, így autóbeállási lehetőség biztosított telken belül.

A lakások a ház két oldalán helyezkednek el, teljesen külön bejárattal, ügyvéd általi megosztással.

Amit kínálunk:

✔ praktikus térkialakítás
✔ modern, energiatakarékos műszaki megoldások
✔ saját kertkapcsolat
✔ klíma a lakásokban
✔ egyedi igények figyelembe vétele a kivitelezés során

Ideális választás családoknak, első otthonnak vagy akár befektetésnek is.

Várom hívását a hét bármely napján.
Jenei Szilvia

Jenei Szilvia

Hívjon bizalommal

+36-20-203-Mutasd!

További hirdetéseim

Ingatlaniroda
GDN Ingatlanhálózat - Harmónia

Küldjön üzenetet

Visszahívást kérek

Hasonló ingatlanok