Eladó Családi ház Vác - Modern nyugalom, új családi házban!

280 m2Alapterület 6 Szoba
259 900 000 Ft Ár
384555Azonosító
További adatok

1720 m2 Telek

Panoráma Kilátás

Új Állapot

Tégla Szerkezet

63 m2 Erkély/terasz

Hőszivattyú Fűtés

Luxus Komfort

Saját garázs Parkolás

Közepes Tömegközlekedés

Amerikai konyhás

Van Kertkapcsolat

2022 Építés éve

Hitelkalkuláció – a részletekért kattintson valamelyik bank logójára!

Modern nyugalom és örök panoráma Vác legszebb részén

Eladásra kínálunk Vác egyik legexkluzívabb, csendes, mégis frekventált kertvárosi övezetében egy egyedi tervezésű, energiatakarékos, új családi házat, amely egy 1720 nm-es, örök panorámás telken helyezkedik el.

Az ingatlan egy igazi életminőségbeli szintlépés: ahol a természet, a tágas terek, a luxus és a fenntarthatóság találkoznak.

Főbb jellemzők röviden:

• Lakóterület: 280 nm, szinteltolásos kialakítással két szinten
• Telek mérete: 1720 nm – parkosított, körbejárható, játszótérrel
• Panoráma: minden szintről örök kilátás Vácra és a Dunára
• Kivitelezés állapota: 90%-os készültség, teljes anyagkészlet és
tervek rendelkezésre állnak

Műszaki tartalom:

• 20 cm-es falazótégla, 25 cm grafitos hőszigeteléssel (passzívház
értékek)
• Hőszivattyús padlófűtés
• Fan-coil hűtési rendszer
• Légtechnika előkészítve
• Riasztórendszer előkészítve
• 3 rétegű hőszigetelt, nagyméretű nyílászárók alumínium és
műanyag profillal
• Mozgatható, kinyitható üvegfelületek – a belső és külső tér szinte
eggyé tud válni
• Prémium burkolatok, beltéri ajtók és szaniterek
• Magas minőségű, beépített konyhabútor minőségi gépekkel
• Prémium sötétítési megoldások a teljes fénykontrollal a
magánszféráért

Belső elrendezés:

Földszint:
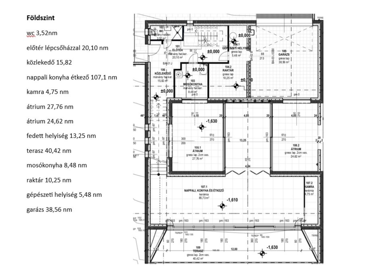
• 2 beállásos garázs (38,5 nm)
• Előtér lépcsőházzal (19 nm), közlekedő (17 nm), gépészeti
helyiség 5,7 nm), tároló (10,3 nm), mosókonyha (8,5 nm)
(összesen: 60,5 nm)
• Mosdó + WC (3 nm)
• Hatalmas nappali–étkező–konyha egy légtérben (85,7 nm,)
ezzel összenyitható helyiségek:
teraszok (28,7nm és 25,7 nm), valamint egy közösségi tér
(25 nm) (összesen: 79.4 nm)
• Kamra (4,3 nm)
• Több terasz: 40 nm-es fedett + 2 kisebb nyitott, oldalról zárt –egy
közösségi térré egybenyithatók a nappalival

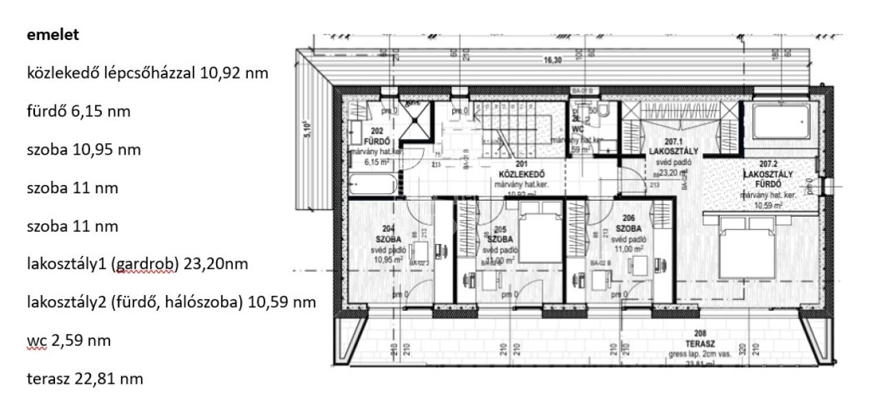
Emelet:
• Tágas szülői lakosztály (33,5 nm) privát fürdőkáddal, gardróbbal
• 3 félszoba (11–11–11 nm)
• Külön WC és fürdőszoba (káddal, zuhanyzóval)
(5,6 nm és 2,4 nm)
• közlekedő és lépcsőház (11,4 nm)
• Hatalmas, teljes szélességű erkély minden szobából elérhető,
örök panorámával (22,5 nm)

Külső tér – nyugalom, kilátás, szabadság:

• Körbejárható ház, füvesített kert
• Játszótér, kialakított pihenőrészek
• Közvetlen kapcsolat a természethez – tágas, levegős terek,
örök kilátással

Közlekedés, elhelyezkedés:

• A város egyik legértékesebb része: a váci Rózsadombon,
örök panorámás környezetben
• Budapest elérhető közelségben: M2-es autóút pár perc,
autóval 20-25 perc
• Kiváló infrastruktúra: iskolák, boltok, szolgáltatások a közelben

Miért különleges ez az ingatlan?

• Saját részre, gondos tervezéssel készült
• Egyedi, stílusos, mégis funkcionális térkialakítás
• Energiatudatos és jövőálló technológiák

Ajánljuk mindazoknak, akik nem érik be az átlagossal. Akiknek fontos a tér, a kilátás, az energiahatékonyság, és hogy egy valódi, értékálló otthont teremtsenek családjuknak.

Ne maradjon le erről a kivételes lehetőségről – keressen bizalommal további információért vagy időpont egyeztetésért!
Tóth Krisztina

Tóth Krisztina

Hívjon bizalommal

+36-20-340-Mutasd!

További hirdetéseim

Ingatlaniroda
GDN Ingatlanhálózat - Nádor

Küldjön üzenetet

Visszahívást kérek

Hasonló ingatlanok