Kiadó Lakás Szeged - Sándor utca

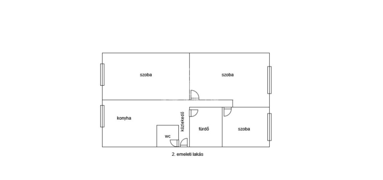
65 m2Alapterület 3 Szoba
240 000 Ft /Hó Ár
394916Azonosító
További adatok

Udvari Kilátás

Felújított Állapot

Tégla Szerkezet

Gáz (cirkó) Fűtés

Összkomfort Komfort

Utcán, közterületen Parkolás

Emelet 2

Nincs Lift

Háziállat Nem

Kiváló Tömegközlekedés

Nem Amerikai konyhás

Nincs Kertkapcsolat

1970 Építés éve

Közös költség 10 000 Ft

Igényes, teljesen felújított lakás kiadó Szegeden!

Kiadó Szeged kedvelt részén, a Sándor utcában egy 2. emeleti, 65 m²-es, teljes körűen felújított, bútorozott és gépesített lakás.

Az ingatlan kiváló elosztású: 3 külön nyíló szoba biztosít kényelmes életteret, így ideális választás lehet akár több bérlő számára is. A modern kialakítás, a klímaberendezés, valamint a cirkó fűtés gondoskodik a komfortos mindennapokról és a gazdaságos fenntartásról.

A lakás 2026. június 15-től költözhető, állapota kiváló, azonnal birtokba vehető.

Főbb jellemzők:

* 65 m² alapterület
* 3 külön nyíló szoba
* Teljesen felújított állapot
* Bútorozott és gépesített
* Klímával felszerelt
* Cirkó fűtés
* 2. emeleti elhelyezkedés
* Parkolás az utcán lehetséges
* Nem erkélyes

Bérleti feltételek:

* Bérleti díj: 240.000 Ft/hó + rezsi
* 2 havi kaució szükséges
* Minimum bérleti idő: 12 hónap
* Közjegyzői okirat vállalása szükséges
* Kisállat nem hozható

**Kinek ajánljuk?**
Ideális választás lehet akár 3 diák számára is, de fiatal pároknak vagy kisebb családoknak is tökéletes otthon.

Ne maradjon le erről a kiváló adottságú albérletről! További információért és megtekintés egyeztetéséhez keressen bizalommal.
Vetró-Gyenizse Dóra Anna

Vetró-Gyenizse Dóra Anna

Hívjon bizalommal

+36-30-974-Mutasd!

További hirdetéseim

Ingatlaniroda
GDN Ingatlanhálózat - Belvárosi Ingatlaniroda

Küldjön üzenetet

Visszahívást kérek

Hasonló ingatlanok