Eladó Lakás (téglaépítésű) Szeged - Fő fasor

63 m2Alapterület 2 Szoba
65 500 000 Ft Ár
386489Azonosító
További adatok

Kertre néző Kilátás

Jó állapotú Állapot

Tégla Szerkezet

6 m2 Erkély/terasz

Gáz (cirkó) Fűtés

Összkomfort Komfort

Utcán, közterületen Parkolás

Emelet Földszint

Nincs Lift

Kiváló Tömegközlekedés

Nem Amerikai konyhás

Van Kertkapcsolat

2002 Építés éve

Közös költség 14 800 Ft

Hitelkalkuláció – a részletekért kattintson valamelyik bank logójára!

ELADÓ TÉGLA LAKÁS ÚJSZEGEDEN

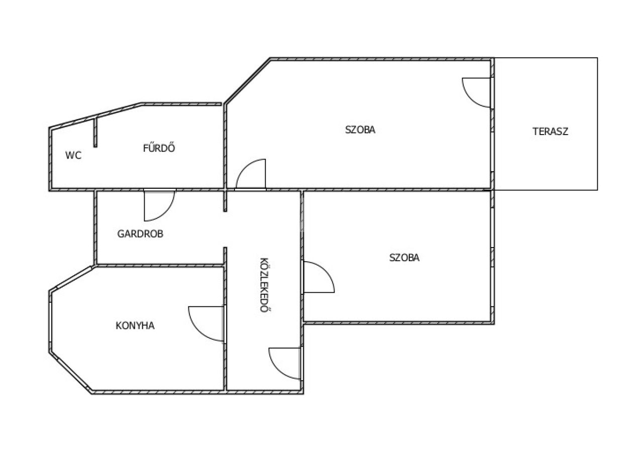
Eladásra kínáljuk Szeged kertvárosi részén, a Fő fasoron ezt a 63 négyzetméteres, szép állapotú téglaépítésű földszinti lakást 2002-ben épült társasház belső udvari,csendes részén.
A lakásban étkező-konyha, két tágas, világos szoba található,a nagyobbikból juthatunk a kis saját terasz részre.
A fürdő és a wc közös helyiségben található és egy gardrob részen keresztül lehet megközelíteni.
Fűtését tekintve gázcirkó rendszerű, a hidegburkolatos helyiségekben padlófűtés, a laminált padlóval burkolt szobákban pedig radiátoros.
A hűtésről klíma gondoskodik.
A lakás nagy előnye a 6 négyzetméteres terasz, mely tökéletes hely a kikapcsolódáshoz és a friss levegő élvezetéhez.

A lakás tehermentes, azonnal költözhető.

Ne hagyja ki ezt a lehetőséget, vásároljon lakást Szeged egyik legkedveltebb részén ami akár befektetési, akár saját célra is jó választás lehet, hiszen a lokációja kiváló!

Kutyát a házban tartani nem lehetséges!

NÉZZE MEG AJÁNLATUNKAT SZEMÉLYESEN IS!
Szil Gabriella

Szil Gabriella

Hívjon bizalommal

+36-30-901-Mutasd!

További hirdetéseim

Ingatlaniroda
GDN Ingatlanhálózat - Belvárosi Ingatlaniroda

Küldjön üzenetet

Visszahívást kérek

Hasonló ingatlanok