Eladó Családi ház Nyíregyháza - Kollégium utcai lakópark 3

139 m2Alapterület 3 Szoba
99 000 000 Ft Ár
388011Azonosító
További adatok

720 m2 Telek

Panoráma Kilátás

Új Állapot

Tégla Szerkezet

14 m2 Erkély/terasz

Gáz (cirkó) Fűtés

Dupla komfort Komfort

Saját garázs Parkolás

Közepes Tömegközlekedés

Amerikai konyhás

Van Kertkapcsolat

2025 Építés éve

Hitelkalkuláció – a részletekért kattintson valamelyik bank logójára!

Eladó Nyíregyháza Nyírszőlős részén a Kollégium utcai lakóparkban 2025-ben épülő új A++ besorolású 3 szobás garázsos családi ház. (K/3)

Ára: 99.000.000 Ft.

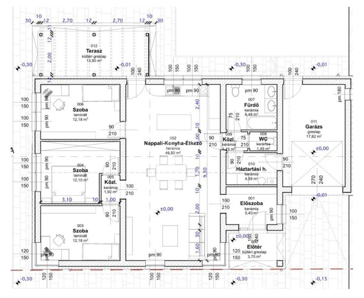
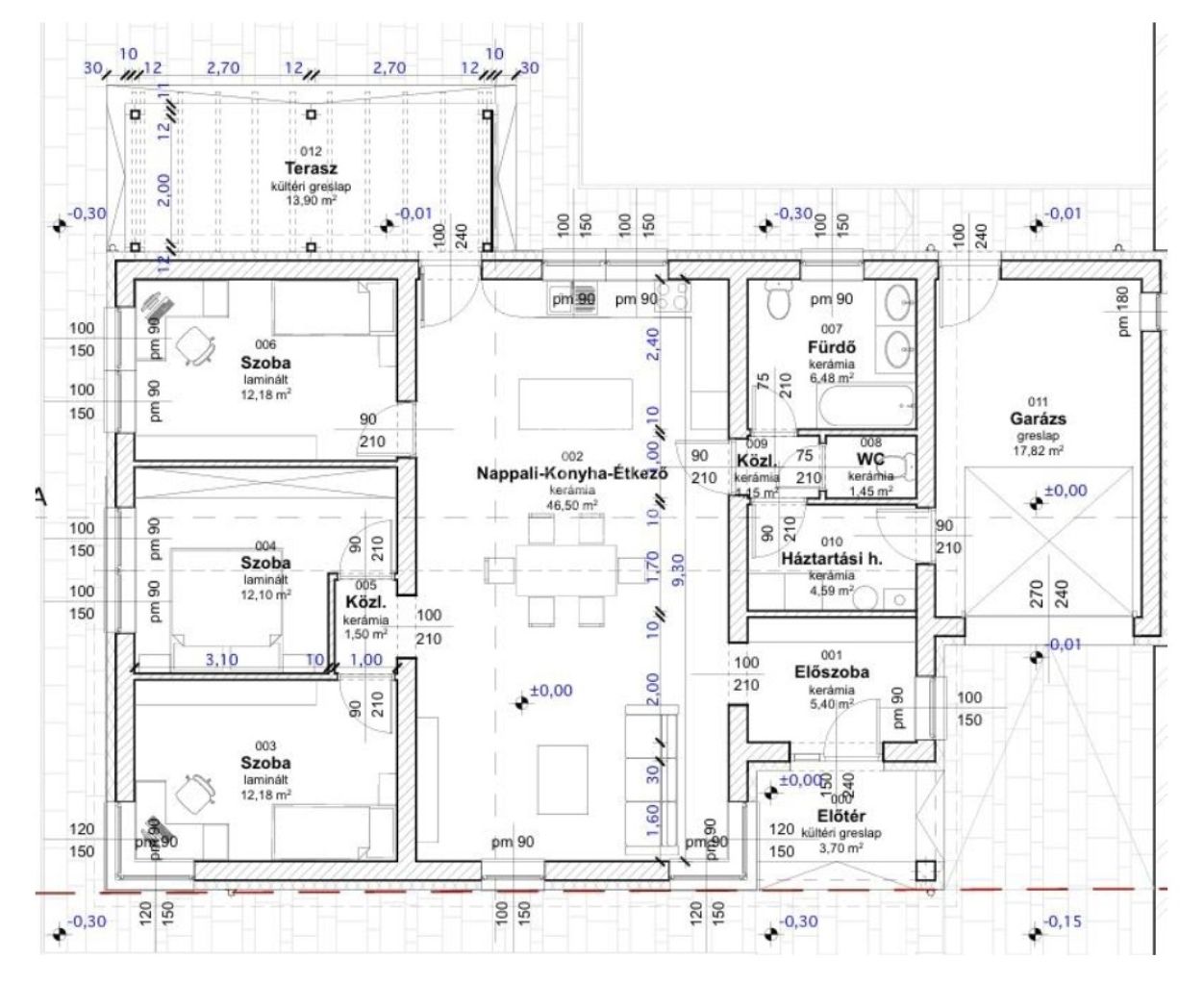
Az ingatlan alap méretei:
- a telek mérete: 720nm,
- a ház alapterülete: 139nm.

Az épület hasznos alapterülete 139nm melyben található:
- 3 szoba,
- 2 közlekedő,
- nappali-konyha-étkező,
- háztartási helység,
- fürdőszoba,
- WC,
- előtér,
- garázs (17,82nm),
- terasz (13,9nm).


Az új építésű családi ház várhatóan 8 hónapon belül kerül átadásra, mely korszerű hő takarékos építészeti megoldásokat alkalmazva készül el. A falazata 30-as téglából épül, mely 15 cm-es EPS homlokzati hőszigetelést kap. A födém szerkezete 15 cm-es ásványszálas hőszigetelésű lesz, így az egész épület energetikai szempontból A++ kategóriájú.

Az épületben áram, víz, gáz és csatorna bekötésre kerül. Az épület padlófűtéssel, radiátoros fűtéssel vagy kérés esetén a kettő kombinációjával készül el, mely gáz cirkó kazánról fog működni. Ezen kívül még 2 db hűtő-fűtő klíma is rendelkezésre fog állni. A melegvíz ellátásról szintén a gáz cirkó kazán gondoskodik.

Az ingatlan ideális választás lehet mindazok számára, akik új építésű, modern energiatakarékos otthont keresnek nyugodt kertvárosi környezetben.

Fontos!
Az ingatlan per és tehermentes, 2 gyerekes CSOK Plusz is igénybe vehető!

Figyelem!
Minőségi kivitelezés és választható belső burkolatok, szaniterek.
2025-ös energetikai szabványoknak megfelelő modern megoldások.
A belső elrendezés igény szerint módosítható.

Ha felkeltette érdeklődését, hívja irodánkat bizalommal!
Ha hitelre van szüksége éljen ingyenes, személyre szabott hitel ügyintézési szolgáltatásunkkal is.
Berki Katalin

Berki Katalin

Hívjon bizalommal

+36-70-789-Mutasd!

További hirdetéseim

Ingatlaniroda
GDN Ingatlanhálózat - VHL Ingatlaniroda
+36-70-789-1998

Küldjön üzenetet

Visszahívást kérek

Hasonló ingatlanok