Eladó Családi ház Nyíregyháza - Kollégium utcai lakópark 2

109 m2Alapterület 3 Szoba
79 000 000 Ft Ár
383973Azonosító
További adatok

360 m2 Telek

Panoráma Kilátás

Új Állapot

Tégla Szerkezet

Gáz (cirkó) Fűtés

Dupla komfort Komfort

Saját garázs Parkolás

Közepes Tömegközlekedés

Amerikai konyhás

Van Kertkapcsolat

2025 Építés éve

Hitelkalkuláció – a részletekért kattintson valamelyik bank logójára!

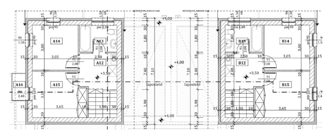
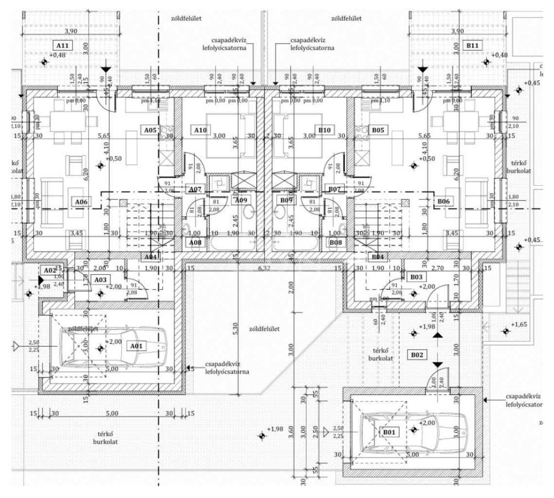
Eladó Nyíregyháza Nyírszőlős részén a Kollégium utcai lakóparkban 2025-ben épülő új A++ besorolású 3 szobás garázsos lakóparki ikerház. (K/2)

Ára: 79.000.000 Ft.

Az ingatlan alap méretei:
- a telek mérete: 360nm,
- a ház alapterülete: 109nm.

Az épület hasznos alapterülete 109nm melyben található:
- 3 szoba,
- amerikai konyhás nappali,
- kamra,
- fürdőszoba,
- WC,
- közlekedő,
- előszoba,
- garázs (17nm),
- terasz (12nm).


Az új építésű lakóparki ikerház várhatóan 8 hónapon belül kerül átadásra, mely korszerű hő takarékos építészeti megoldásokat alkalmazva készül el. A falazata 30-as téglából épül, mely 15 cm-es EPS homlokzati hőszigetelést kap. A födém szerkezete 15 cm-es ásványszálas hőszigetelésű lesz, így az egész épület energetikai szempontból A++ kategóriájú.

Az épületben áram, víz, gáz és csatorna bekötésre kerül. Az épület padlófűtéssel, radiátoros fűtéssel vagy kérés esetén a kettő kombinációjával készül el, mely gáz cirkó kazánról fog működni. Ezen kívül még 2 db hűtő-fűtő klíma is rendelkezésre fog állni. A melegvíz ellátásról szintén a gáz cirkó kazán gondoskodik.

Az ingatlan ideális választás lehet mindazok számára, akik új építésű, modern energiatakarékos otthont keresnek nyugodt kertvárosi környezetben.

Fontos!
Az ingatlan per és tehermentes, 2 gyerekes CSOK Plusz is igénybe vehető!

Figyelem!
Minőségi kivitelezés és választható belső burkolatok, szaniterek.
2025-ös energetikai szabványoknak megfelelő modern megoldások.
A belső elrendezés igény szerint módosítható.

Ha felkeltette érdeklődését, hívja irodánkat bizalommal!
Ha hitelre van szüksége éljen ingyenes, személyre szabott hitel ügyintézési szolgáltatásunkkal is.
Petrován Pál Gyula

Petrován Pál Gyula

Hívjon bizalommal

+36-70-789-Mutasd!

További hirdetéseim

Ingatlaniroda
GDN Ingatlanhálózat - VHL Ingatlaniroda
+36-70-789-1998

Küldjön üzenetet

Visszahívást kérek

Hasonló ingatlanok