Eladó Kastély, kúria Nyárlőrinc - II.körzet

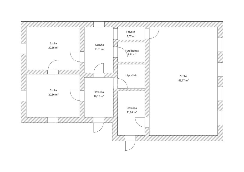
150 m2Alapterület 4 Szoba
24 900 000 Ft Ár
376000Azonosító
További adatok

8260 m2 Telek

Kertre néző Kilátás

Közepes Állapot

Tégla Szerkezet

Egyéb Fűtés

Egyéb Komfort

Saját beálló Parkolás

Gyenge Tömegközlekedés

Nem Amerikai konyhás

Van Kertkapcsolat

1932 Építés éve

Délnyugati Tájolás

Hitelkalkuláció – a részletekért kattintson valamelyik bank logójára!

Otthonok és megoldások!

Nyárlőrinc vadregényes, erdős külterületen eladó egy egyedi hangulatú, 150 nm nettó alapterületű, autentikus kúria jellegű épület 8.260 nm-es, szomszédmentes telken.
Az ingatlan korábban iskolaépületként szolgált, az ún. Klebelsberg-féle tanyasi iskolák típusépületeként (levéltári dokumentumokkal alátámasztva).

Jellemzők:

50 cm vastag, masszív téglafalazat, korát meghaladó, kiváló minőségű anyagokkal építve.

Tetőhéjazat cserélt, faszerkezet stabil, hatalmas beépíthető tetőtér.

Száraz, boltíves 14 nm-es pince az épület alatt.

További 34 nm-es vendégház, műhely, garázs vagy istáló kialakítására alkalmas épület a telken.

Villany a telken belül, ivóvíz biztosítására új kút fúrása szükséges.

A tágas terek és változatos beépítési lehetőségek miatt ideális nagycsaládosoknak, de akár szállás és rendezvényhelyszín, alkotó vagy gyerektábor kialakítása is kifejezetten alkalmas.

Az ár-érték rendkívül kedvező, kiváló befektetési lehetőség!

Gazdasági épület, így kifejezetten készpénzes vevőt keresünk, aki értékeli az egyedi és sokfunkciós ingatlan adta lehetőségeket.

Ha felkeltette érdeklődését ez az értékes és különleges kúria, kérem, keressen bizalommal a megtekintésért!
Kocsis Zoltán

Kocsis Zoltán

Hívjon bizalommal

+36-30-667-Mutasd!

További hirdetéseim

Ingatlaniroda
GDN Ingatlanhálózat - STOP Ingatlan
+36 76 536 091

Küldjön üzenetet

Visszahívást kérek

Hasonló ingatlanok