Eladó Családi ház Őrbottyán - Bajcsy Zsilinszky utca

118 m2Alapterület 4 Szoba
124 900 000 Ft Ár
391699Azonosító
További adatok

820 m2 Telek

Udvari Kilátás

Új Állapot

Tégla Szerkezet

20 m2 Erkély/terasz

Gáz (cirkó) Fűtés

Összkomfort Komfort

Saját beálló Parkolás

Tömegközlekedés

Amerikai konyhás

Van Kertkapcsolat

2026 Építés éve

Hitelkalkuláció – a részletekért kattintson valamelyik bank logójára!

Eladásra kínálok Őrbottyán kiváló kertvárosias részén egy önálló családiházat, amely építése most kezdődik el.
Az amerikai konyhás nappalit 3 hálószoba egészíti ki.
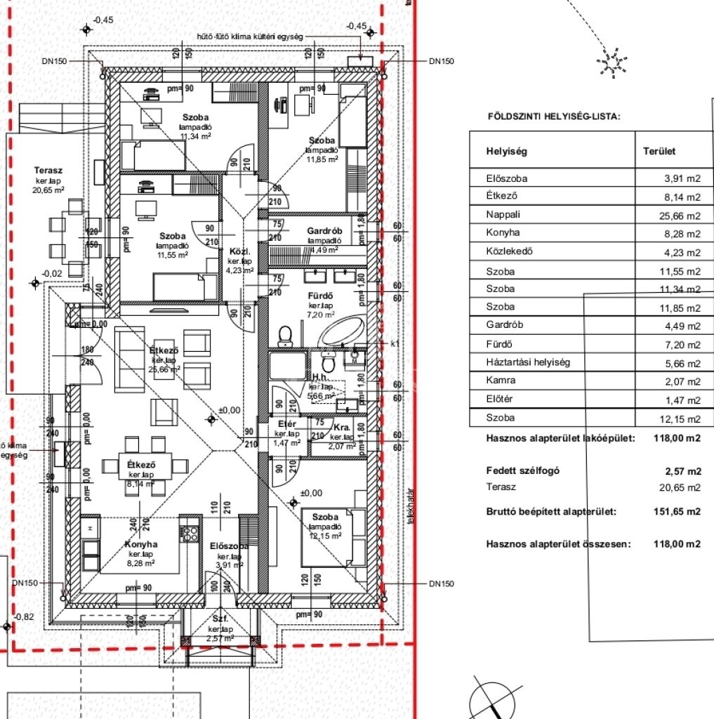
Felosztása:
Előszoba 3,91 m2
Étkező 8,14 m2
Nappali 25,66 m2
Konyha 8,28 m2
Közlekedő 4,23 m2
Szoba 11,55 m2
Szoba 11,34 m2
Szoba 11,85 m2
Gardrób 4,49 m2
Fürdő 7,20 m2
Háztartási helyiség 5,66 m2
Kamra 2,07 m2
Előtér 1,47 m2
Szoba 12,15 m2
Összesen: 118,00 m2
Fedett szélfogó 2,57 m2
Nyitott terasz 20,65 m2
Hasznos alapterület összesen: 118,00 m2
BRUTTÓ BEÉPÍTETT ALAPTERÜLET: 151,65 m2
Gázcirkós fűtés, padlófűtéses hőleadókkal.
Műanyag három rétegű nyílászárók.
Saját autóbealló, nagy méretű telek!
Hívjon bizalommal!
Nagy Barbara

Nagy Barbara

Hívjon bizalommal

+36-70-490-Mutasd!

További hirdetéseim

Ingatlaniroda
GDN Ingatlanhálózat - Barbara Property
+36-70-490-7364

Küldjön üzenetet

Visszahívást kérek

Hasonló ingatlanok