Eladó Családi ház Dunaharaszti - Felsőváros

74 m2Alapterület 3 + 1 Szoba
75 990 000 Ft Ár
391672Azonosító
További adatok

436 m2 Telek

Kertre néző Kilátás

Közepes Állapot

Tégla Szerkezet

7 m2 Erkély/terasz

Gáz (héra) Fűtés

Összkomfort Komfort

Saját garázs Parkolás

Tömegközlekedés

Nem Amerikai konyhás

Van Kertkapcsolat

1965 Építés éve

Hitelkalkuláció – a részletekért kattintson valamelyik bank logójára!

Dunaharaszti, Központhoz közel eladó egy közepes állapotú 74 m2-es tégla építésű családi ház 436 m2-es saroktelekkel.

RENDELŐNEK, IRODÁNAK is alkalmas lehet a kiváló elhelyezkedése miatt, világos, jó energiájú ház.

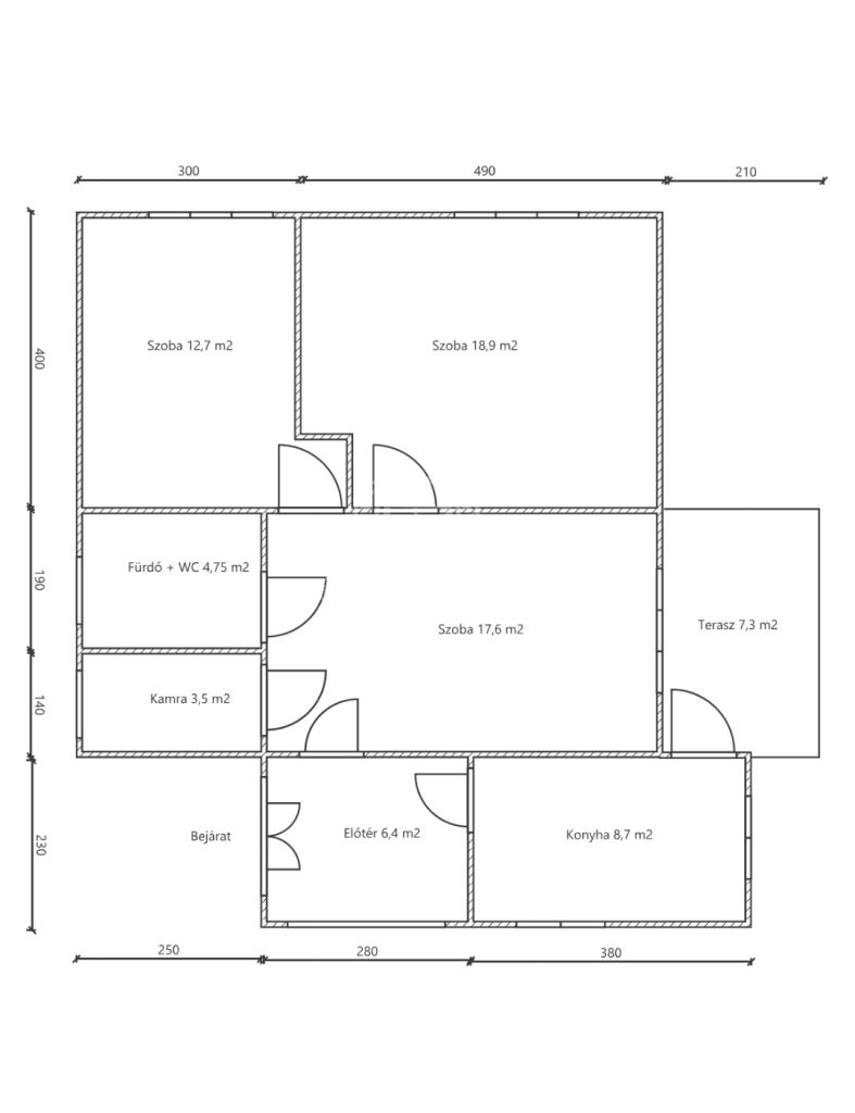
Beosztása:
- előtér 6,4 m2,
- konyha 8,7 m2,
- szoba 17,6 m2,
- szoba 18,9 m2,
- szoba 12,7 m2,
- fürdő+WC 4,75 m2,
- kamra 3,5 m2,
- pince 5 m2
plusz terasz 7,3 m2

Az ingatlanon az előtér és konyha hozzáépítése, valamint a fürdőszoba felújítása 2006-ban történt. A tető nagyon jó állapotú, fűtése Héra gázkazánnal, illetve elektromos konvektorokkal megoldott. A fa nyílászárók védőráccsal és redőnnyel ellátottak. Burkolatok a szobákban parketta, az előtér és konyha pedig vinyl. A hangulatos terasz belső nyugodt kertre néz, ami járólappal burkolt. A kerítés időtálló gránitból készült.

A telken egy 20 m2-es garázs található, plusz egy fedett tároló, valamint fúrt kút hidrofor szivattyúval.

Frekventált helyen van, közel a Rendelőintézet, Kormányablak, iskola, óvoda, posta és számos szolgáltatás. A HÉV és busz megálló, valamint bevásárlási lehetőség 10 perc sétára.

Az ingatlan nem hitelezhető!

Amivel segítjük az Ön ingatlanvásárlását:
- jogi háttér,
- földhivatali ügyintézés,
- energetikai tanúsítvány,
- a vevő számára az ingatlanközvetítés ingyenes.

Irodánk 30 éves szakmai tapasztalattal áll ügyfelei rendelkezésére!

Várom szíves megkeresését!
Szirtes Ágnes

Szirtes Ágnes

Hívjon bizalommal

+36-20-268-Mutasd!

További hirdetéseim

Ingatlaniroda
GDN Ingatlanhálózat - Csombók ELAN
+36 24 516 120

Küldjön üzenetet

Visszahívást kérek

Hasonló ingatlanok