Eladó Lakás Budapest XIV. kerület - Stefánia út

46 m2Alapterület 1 + 2 Szoba
79 000 000 Ft Ár
393492Azonosító
További adatok

Udvari Kilátás

Felújítandó Állapot

Tégla Szerkezet

Gáz (konvektor) Fűtés

Komfort Komfort

Utcán, közterületen Parkolás

Emelet 1

Nincs Lift

Kiváló Tömegközlekedés

Amerikai konyhás

Nincs Kertkapcsolat

1970 Építés éve

Közös költség 13 700 Ft

Keleti Tájolás

Hitelkalkuláció – a részletekért kattintson valamelyik bank logójára!

AZONNALI BEKÖLTÖZÉSŰ HÁROMSZOBÁS LAKÁS ELADÓ A STEFÁNIA ÚTON!!

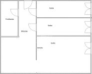
A Népstadionhoz közel, előkertes házban eladó egy egy plusz két félszobás felújitandó amerikai konyhás téglalakás az első emeleten.
A szobák parkettásak és külön bejáratúak és az előszobából nyílnak.
A nappaliban kapott helyet az amerikai konyha is.
A nyílászárók műanyagok, a redőny felújítandó.
Fűtés konvektorral és gázcirkóval történik meg .
A fürdőszoba zuhanyfülkés és benne található a toilette is.
A lakás ablakai a belső kertre nyílnak, fekvésük keleti.
Vízóra van a lakásban.

Parkolási hely bérelhető, költsége 30.000 Ft/év

Közös költség: 13.700 Ft/hó.

Infrastruktúra: Közel találhatók a Hungária körúton lévő üzletek, pl. Spar,Bank

Közlekedés: 75-ös trolibusz és a Hungária körúton lévő 1-es 1A villamos. METRO a Népstadiontól és Buszpályaudvar is .
Sinkó Lászlóné Nóra

Sinkó Lászlóné Nóra

Hívjon bizalommal

+36-30-659-Mutasd!

Beszélt nyelvek:

További hirdetéseim

Ingatlaniroda
GDN Ingatlanhálózat - Siker Kulcsa Ingatlaniroda

Küldjön üzenetet

Visszahívást kérek

Hasonló ingatlanok