Eladó Lakás Biatorbágy - Természetközeli modern

96 m2Alapterület 3 Szoba
89 800 000 Ft Ár
394218Azonosító
További adatok

Panoráma Kilátás

Jó állapotú Állapot

Ytong Szerkezet

Elektromos Fűtés

Összkomfort Komfort

Saját beálló Parkolás

Emelet 2

Legfelső emelet

Nincs Lift

Tömegközlekedés

Amerikai konyhás

Nincs Kertkapcsolat

Tetőtéri ingatlan

2006 Építés éve

Északnyugati Tájolás

Hitelkalkuláció – a részletekért kattintson valamelyik bank logójára!

PANORÁMÁS, KIVÁLÓ OTTHON BIATORBÁGYON – TERMÉSZET KÖZELÉBEN, MÉGIS MINDENHEZ KÖZEL!

Biatorbágy egyik legkedveltebb, nyugodt részén, az Iharosban kínálunk megvételre egy igazán hangulatos, világos tetőtéri lakást, ahonnan lenyűgöző kilátás nyílik a híres Viaduktra – egy látvány, ami minden nap élményt ad.

Egy mindössze háromlakásos társasház legfelső szintjén található ez a 2013-ban a tetőtérben kialakított, újszerű állapotú otthon, amely ideális választás pároknak, kisebb családoknak vagy akár befektetésnek is.

Lakás jellemzői:

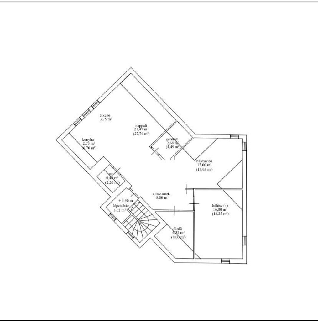
bruttó 96 m² / nettó 74 m²
tágas amerikai konyhás nappali
2 külön nyíló hálószoba
fürdőszoba + külön WC
praktikus gardrób
kiváló elosztás, élhető terek

A lakás egész nap fényárban úszik, barátságos hangulatú, azonnal költözhető állapotban van.

Modern műszaki megoldások:

4 db korszerű, WIFI vezérelhető DAIKIN klíma (hűtés-fűtés)
energiatakarékos működés
okosbojler a melegvízhez
kedvezményes H tarifa → alacsony rezsi

Saját, telken belüli gépkocsi beálló tartozik a lakáshoz – benne az árban.

Környezet:
Ha szereti a természetet, ezt imádni fogja, kirándulóhelyek, friss levegő, csend, nyugalom.

Mindezek mellett a városközpont 10-12 perc sétával elérhető, ahol minden fontos szolgáltatás megtalálható. Buszmegálló is a közelben.

Budapest mindössze kb. 20 perc autóval – így tökéletes választás azoknak, akik nyugalomra vágynak, de nem akarnak elszakadni a fővárostól.

Ha egy modern, alacsony rezsijű, különleges hangulatú otthont keres zöld környezetben, ezt a lakást mindenképp nézze meg!
Az ilyen adottságú ingatlanok ritkán kerülnek piacra. Ne maradjon le róla!
Szőke Lívia

Szőke Lívia

Hívjon bizalommal

+36-20-517-Mutasd!

További hirdetéseim

Ingatlaniroda
GDN Ingatlanhálózat - GARDEN CITY
+36-70-977-8080

Küldjön üzenetet

Visszahívást kérek

Hasonló ingatlanok