Eladó Családi ház Maglód - Tompa Mihály utca

113 m2Alapterület 5 Szoba
109 900 000 Ft Ár
391292Azonosító
További adatok

1074 m2 Telek

Kertre néző Kilátás

Új Állapot

Tégla Szerkezet

15 m2 Erkély/terasz

Hőszivattyú Fűtés

Összkomfort Komfort

Saját beálló Parkolás

Tömegközlekedés

Amerikai konyhás

Van Kertkapcsolat

2025 Építés éve

Délnyugati Tájolás

Hitelkalkuláció – a részletekért kattintson valamelyik bank logójára!

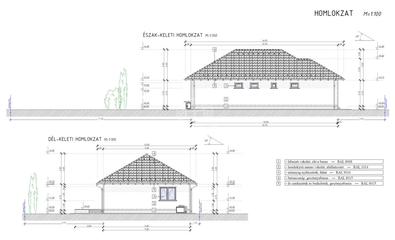
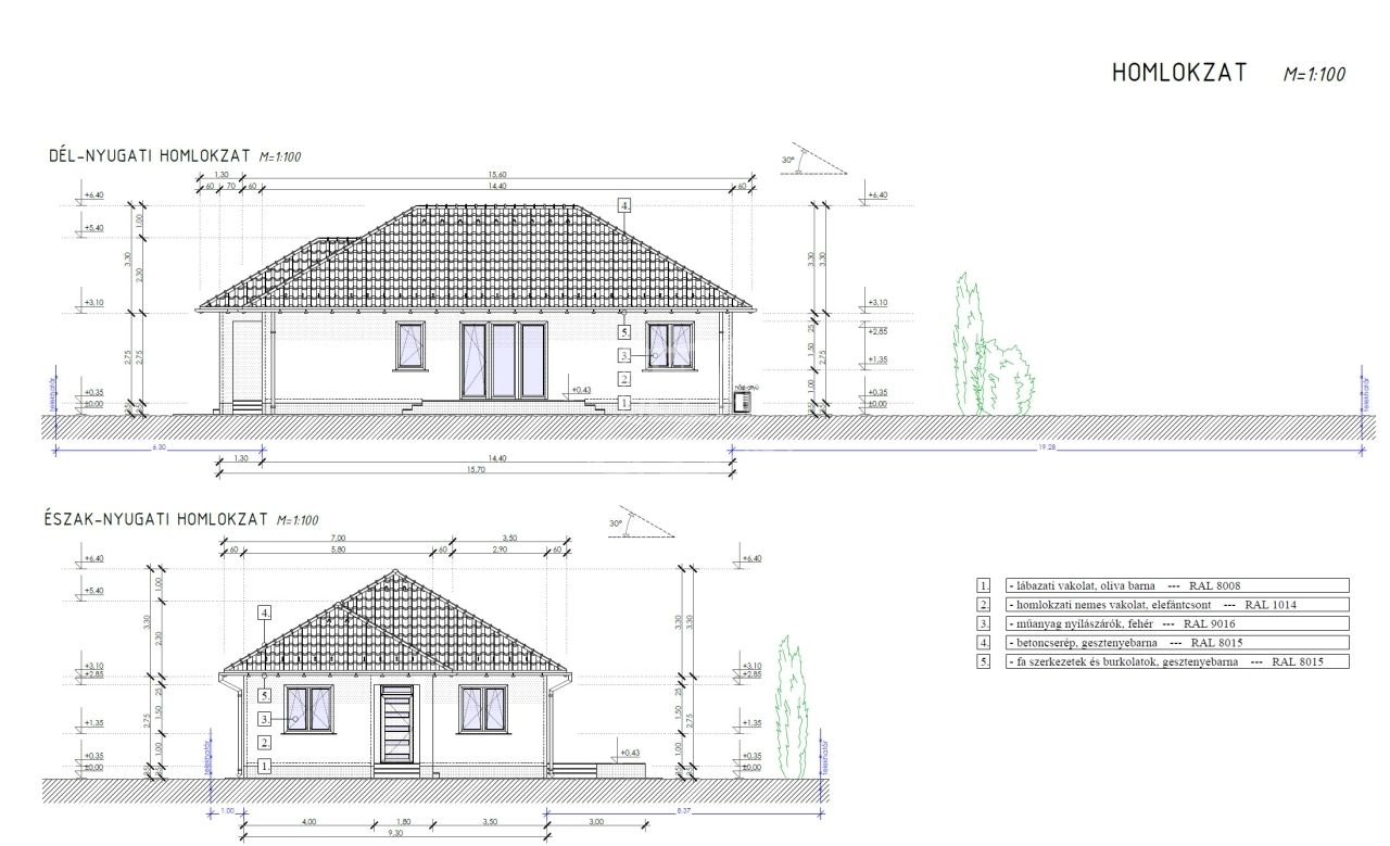
Maglódon a Tompa Mihály utca 20 szám alatt, 1074 m2-es telken, újonnan épülő nettó 111,29 m2 hasznos lakótérrel rendelkező, 4 szoba + nappalis önálló családi ház eladó.

Csok plusz, Otthon Start elérhető!

A terv még módosítható, igény szerint kialakítható három szobával és nagyobb nappalival is a családi ház!

Az ingatlan 30-as Nútféderes tégla falazóelemből épül, fa födémmel.
A tető héjazata antracit betoncserép lesz, a homlokzatok 15cm EPS, a padló 10cm Austrotherm AT-N100-as, a vízszintes födém 25cm Ásványgyapot szigeteléssel lesz ellátva.

Hat légkamrás 3 rétegű evegekkel szerelt nyílászárók kerülnek beépítésre.

A fűtést 10kw-os monoblockos hőszivattyús rendszer fogja ellátni, padlófűtéssel.


A műszaki tartalom választható az alábbi költségkereten belül:

-hidegburkolat:5000.- Ft./m2-ig.
-melegburkolat:5000.- Ft./m2-ig
-csaptelepek:15.000.- Ft./db
-kád vagy zuhany: 50.000.- Ft.
-beltéri ajtók:50.000.- Ft./db

Elektromos kiépítés:
-Konnektorok szobákban: 3 db
-Konnektorok nappaliban 4db + internet és kábeltv kiállás
-Konnektorok konyhában: 6db
-Világítás helyiségenként 1-1 db
-Kábeltévé: Előkészítés


Magasabb árú tatalom is választható a különbség finanszírozásával.

Riasztó előkészítés és kapu mozgató elektronika előkészítés is készül.

Kérésre szívesen küldünk komplett tervdokumentációt, műszaki leírást.


A kivitelező korábban Sülysápon számos ingatlant épített,a már értékesített és birtokbaadott ingatlanokat komoly érdeklődés esetén szívesen megmutatjuk referenciaként.


Várható átadás 2026 harmadik negyedév!

INGYENES hitel tanácsadás, CSOK Plusz ügyintézés!
BANKFÜGGETLEN hitelcentrumunk az összes elérhető bank és hitelintézet ajánlatát versenyezteti az Ön kedvéért, ráadásul DÍJMENTESEN.

- Egyedi, bankfiókban nem elérhető kamat- és díjkedvezmények
- Hitelképesség vizsgálat
- Idő, energia és pénz megtakarítás
- Teljes hivatali ügyintézés

Amennyiben hirdetésem felkeltette az érdeklődését vagy egyéb információra van szüksége hívjon bizalommal!
Horváth Péter

Horváth Péter

Hívjon bizalommal

+36-70-606-Mutasd!

Beszélt nyelvek:

További hirdetéseim

Ingatlaniroda
GDN Ingatlanhálózat - Új Otthon iroda
+36-70-606-2990

Küldjön üzenetet

Visszahívást kérek

Hasonló ingatlanok