Eladó Ikerház Kóka - József Attila utca

92 m2Alapterület 4 Szoba
58 900 000 Ft Ár
389926Azonosító
További adatok

994 m2 Telek

Kertre néző Kilátás

Új Állapot

Tégla Szerkezet

16 m2 Erkély/terasz

Hőszivattyú Fűtés

Összkomfort Komfort

Saját garázs Parkolás

Tömegközlekedés

Amerikai konyhás

Van Kertkapcsolat

2026 Építés éve

Délnyugati Tájolás

Hitelkalkuláció – a részletekért kattintson valamelyik bank logójára!

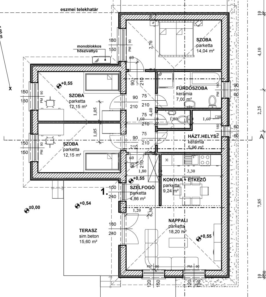
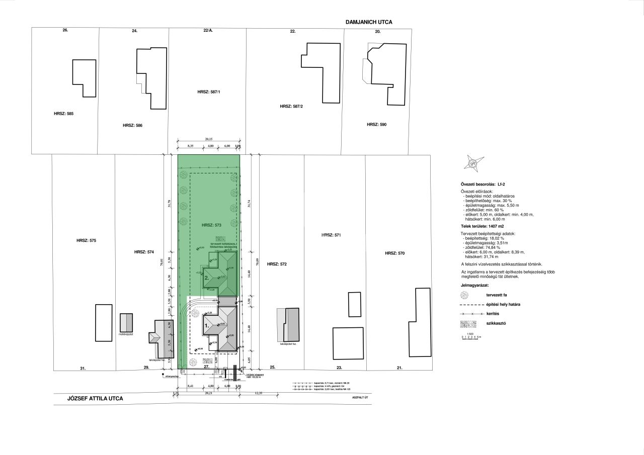
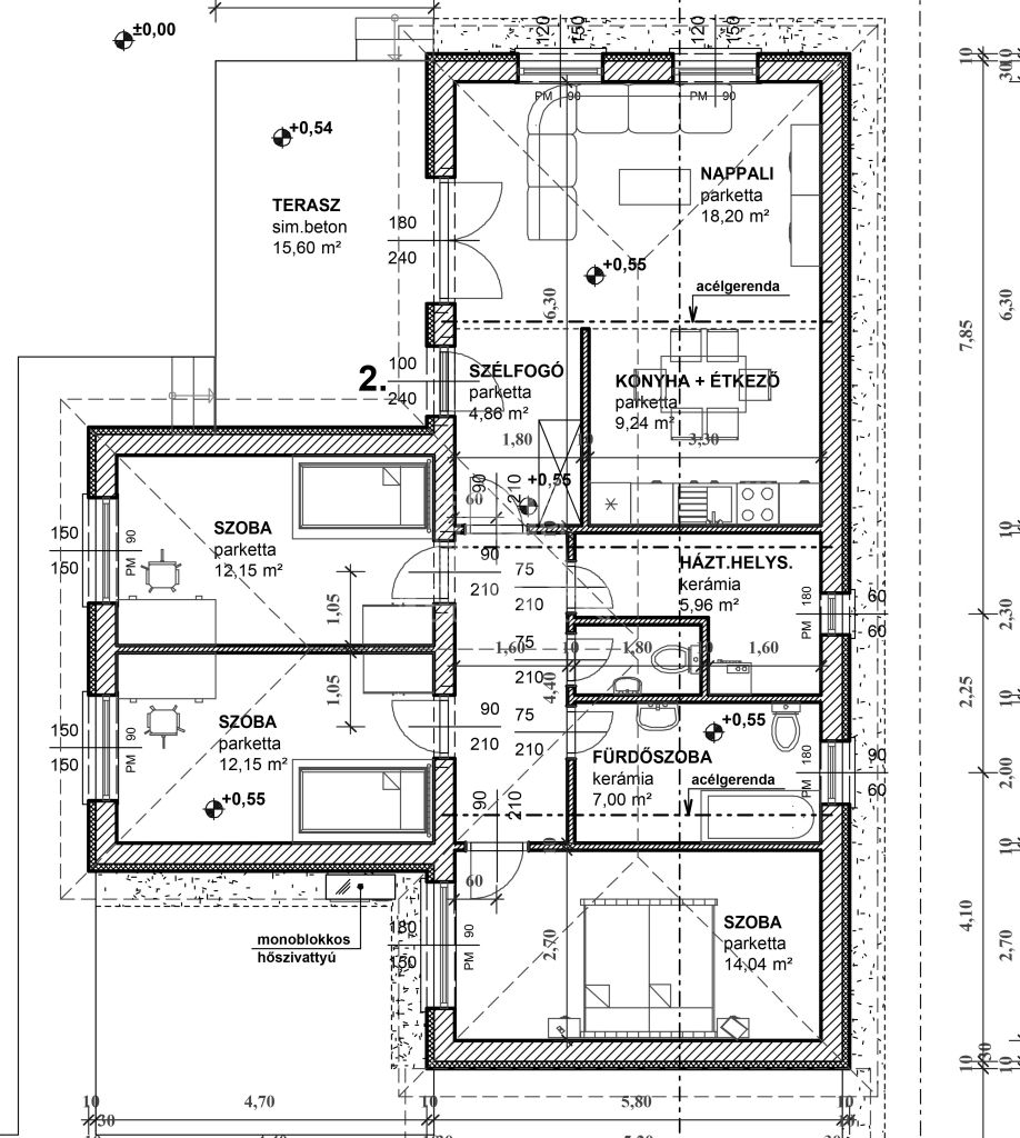
Kókán a József Attila utca 27. szám alatt, 1407 m2-es telkeken, újonnan épülő nettó 92,3 m2 nettó hasznos lakótérrel rendelkező, kulcsrakész ikerházfelek eladóak

A fedett gépkocsibeálló az utcafronti házhoz tartozik, melynek kizárólagos használatú telekrésze 413 m2. A hátsó háznak 994 m2-es a kizárólagos használatú telekrésze.

Az ingatlanok 30-as Nútféderes téglából épülnek, fa födémmel.
A tető héjazata antracit betoncserép lesz, a homlokzatok 10cm Grafitos, a padló 10cm lépésálló, a födém 25cm ásványgyapot szigeteléssel lesz ellátva.

A külső nyílászárók 6 légkamrás háromrétegű üveggel szerelt műanyag thermók lesznek.

A fűtést hőszivattyús rendszer fogja ellátni, padlófűtéssel.


Műszaki tartalom:

-Csempe, járólap 3000 ft/m²
-Meleg burkolat 3000 Ft/m²
-Fürdőkád: 40.000.- Ft
-Beltéri ajtók 32.000.- Ft. /db
-Csaptelepek: 15.000.- Ft. /db

Magasabb árú választás is lehetséges a különbség finanszírozásával.

Elektromos kiépítés:
-Konnektorok szobákban: 3 db
-Konnektorok nappaliban 4db + internet és kábeltv kiállás
-Konnektorok konyhában: 6db
-Világítás helyiségenként 1-1 db
-Kábeltévé: Előkészítés


-Kapumozgató elektronika: előkészítés
-Riasztó: előkészítés


Az utcafronti kerítés színezett zsalukővel, fa lécezéssel készül.

INGYENES hitel tanácsadás, CSOK Plusz ügyintézés!
BANKFÜGGETLEN hitelcentrumunk az összes elérhető bank és hitelintézet ajánlatát versenyezteti az Ön kedvéért, ráadásul DÍJMENTESEN.

- Egyedi, bankfiókban nem elérhető kamat- és díjkedvezmények
- Hitelképesség vizsgálat
- Idő, energia és pénz megtakarítás
- Teljes hivatali ügyintézés

Amennyiben hirdetésem felkeltette az érdeklődését vagy egyéb információra van szüksége hívjon bizalommal!
Horváth Péter

Horváth Péter

Hívjon bizalommal

+36-70-606-Mutasd!

Beszélt nyelvek:

További hirdetéseim

Ingatlaniroda
GDN Ingatlanhálózat - Új Otthon iroda
+36-70-606-2990

Küldjön üzenetet

Visszahívást kérek

Hasonló ingatlanok