Eladó Lakás (téglaépítésű) Ajka - Aporfi M.

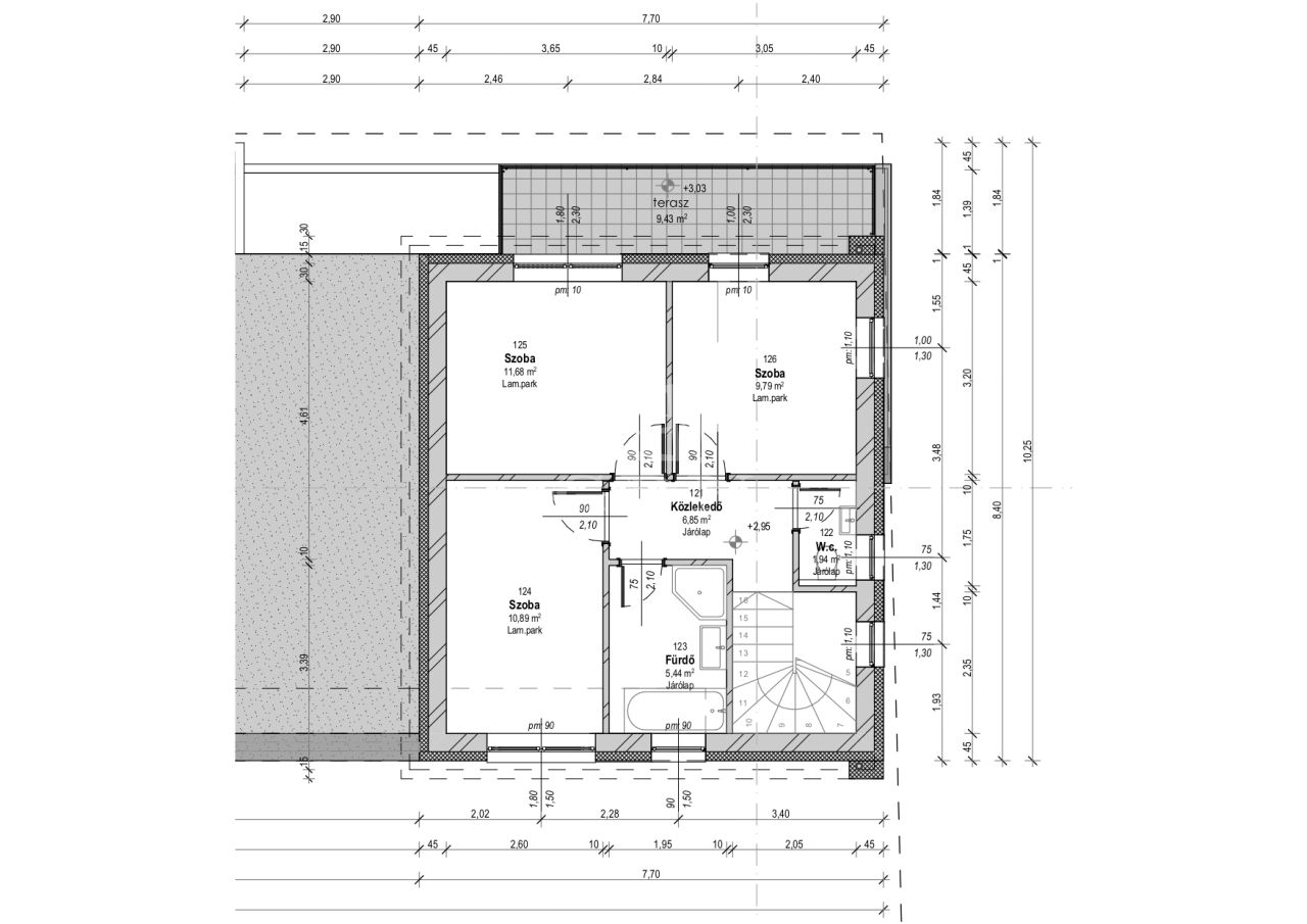
104 m2Alapterület 3 + 2 Szoba
90 944 000 Ft Ár
386480Azonosító
További adatok

272 m2 Telek

Udvari Kilátás

Új Állapot

Tégla Szerkezet

28 m2 Erkély/terasz

Hőszivattyú Fűtés

Összkomfort Komfort

Saját beálló Parkolás

Emelet Földszint

Nincs Lift

Kiváló Tömegközlekedés

Amerikai konyhás

Van Kertkapcsolat

2024 Építés éve

Déli Tájolás

Hitelkalkuláció – a részletekért kattintson valamelyik bank logójára!

Új építésű lakások saját telekkel!

Ingatlanirodánk eladásra kínálja ezt az ÚJ ÉPÍTÉSŰ lakást Ajka-Bakonygyepesen!

- Az ingatlan egy 5 lakásos társasházban található.
- Az ingatlan 104 nm.
- A ház körbekerített, zárt telken helyezkedik el, ahol a lakásokhoz felszíni PARKOLÓHELY illetve saját TELEK is tartozik.

Műszaki adatok:
- A társasház földszinti teherhordó és térelhatároló falszerkezetei 30 cm vastagsággal, LEIER N+F típusú falazóblokkból készülnek, míg a válaszfalak 10 cm vastagsággal szintén LEIER válaszfallapokból.
- Födémszerkezet 20 cm vastag monolit vasbeton szerkezet XPS kiegészítő hőszigeteléssel.
- Tető kialakítása lapostető.
- Homlokzati nyílászárók Spectus 70 típusú belül fehér, kívül antracit színű műanyagszerkezetek 2 rétegű hőszigetelő üvegezéssel, redőnnyel ellátva.
- A ház homlokzati szigetelése 15 cm vastag dryvit EPS 80 hőszigetelő rendszerrel készül.
- A társasház fűtése padlófűtéses kialakítású hőszivattyús rendszer.
- Az ingatlan burkolatok, szaniterek, belső ajtók, konyhabútor nélkül kerül átadásra!

Kivitelezés várható befejezése: 2025. III. negyedév

Amennyiben a veszprémi GDN Ingatlaniroda által kínált ÚJ építésű projekt, vagy bármely a kínálatunkban található ingatlan felkeltette érdeklődését forduljon hozzám bizalommal!

Ingatlanirodánk díjmentes, banksemleges hitelügyintézéssel, illetve ügyvédi tanácsadással is áll Ügyfeleink rendelkezésére!
Major Dóra

Major Dóra

Hívjon bizalommal

+36-20-263-Mutasd!

További hirdetéseim

Ingatlaniroda
GDN Ingatlanhálózat - PATENT HOME Ingatlaniroda
+36-20-611-3405

Küldjön üzenetet

Visszahívást kérek

Hasonló ingatlanok