Eladó Családi ház Csány - Nagy út

93 m2Alapterület 4 Szoba
45 900 000 Ft Ár
383850Azonosító
További adatok

784 m2 Telek

Kertre néző Kilátás

Új Állapot

Tégla Szerkezet

17 m2 Erkély/terasz

Hőszivattyú Fűtés

Összkomfort Komfort

Saját beálló Parkolás

Tömegközlekedés

Amerikai konyhás

Van Kertkapcsolat

2025 Építés éve

Délnyugati Tájolás

Hitelkalkuláció – a részletekért kattintson valamelyik bank logójára!

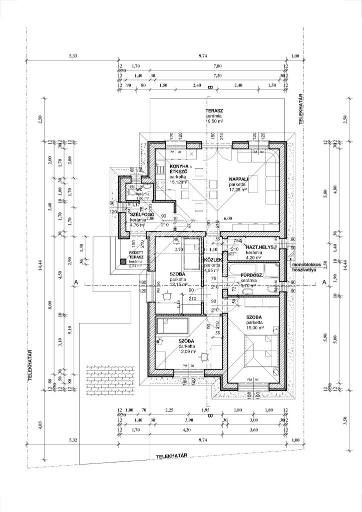
Csányon a Nagy úton , 784 m2-es telken, újonnan épülő nettó 93 m2 hasznos lakótérrel rendelkező, 3 szoba + nappalis önálló családi ház eladó.


Az ingatlan 30-as Nútféderes tégla falazóelemből épül, fa födémmel.
A tető héjazata antracit betoncserép lesz, a homlokzatok 15cm EPS, a padló 10cm Austrotherm AT-N100-as, a vízszintes födém 25cm Ásványgyapot szigeteléssel lesz ellátva.

Hat légkamrás 3 rétegű evegekkel szerelt nyílászárók kerülnek beépítésre.

A fűtést 8kw-os monoblockos hőszivattyús rendszer fogja ellátni, padlófűtéssel.


A műszaki tartalom választható az alábbi költségkereten belül:

-hidegburkolat:3000.- Ft./m2-ig.
-melegburkolat:3000.- Ft./m2-ig
-csaptelepek:15.000.- Ft./db
-kád vagy zuhany: 40.000.- Ft.
-beltéri ajtók:35.000.- Ft./db

Elektromos kiépítés:
-Konnektorok szobákban: 3 db
-Konnektorok nappaliban 4db + internet és kábeltv kiállás
-Konnektorok konyhában: 6db
-Világítás helyiségenként 1-1 db
-Kábeltévé: Előkészítés


Magasabb árú tatalom is választható a különbség finanszírozásával.

Riasztó előkészítés és kapu mozgató elektronika előkészítés is készül.

Kérésre szívesen küldünk komplett tervdokumentációt, műszaki leírást.


A kivitelező korábban számos ingatlant épített,a már értékesített és birtokbaadott ingatlanokat komoly érdeklődés esetén szívesen megmutatjuk referenciaként.


Várható átadás 2026 első negyedév!

INGYENES hitel tanácsadás, CSOK Plusz ügyintézés!
BANKFÜGGETLEN hitelcentrumunk az összes elérhető bank és hitelintézet ajánlatát versenyezteti az Ön kedvéért, ráadásul DÍJMENTESEN.

- Egyedi, bankfiókban nem elérhető kamat- és díjkedvezmények
- Hitelképesség vizsgálat
- Idő, energia és pénz megtakarítás
- Teljes hivatali ügyintézés

Amennyiben hirdetésem felkeltette az érdeklődését vagy egyéb információra van szüksége hívjon bizalommal!
Horváth Péter

Horváth Péter

Hívjon bizalommal

+36-70-606-Mutasd!

Beszélt nyelvek:

További hirdetéseim

Ingatlaniroda
GDN Ingatlanhálózat - Új Otthon iroda
+36-70-606-2990

Küldjön üzenetet

Visszahívást kérek

Hasonló ingatlanok