Eladó Családi ház Iszkaszentgyörgy - Márványkert

127 m2Alapterület 4 Szoba
81 900 000 Ft Ár
380888Azonosító
További adatok

593 m2 Telek

Udvari Kilátás

Új Állapot

Tégla Szerkezet

21 m2 Erkély/terasz

Hőszivattyú Fűtés

Összkomfort Komfort

Saját beálló Parkolás

Tömegközlekedés

Amerikai konyhás

Van Kertkapcsolat

2025 Építés éve

Hitelkalkuláció – a részletekért kattintson valamelyik bank logójára!

Vh-004401 Iszkaszentgyörgyön, a Márványkert szomszédságában, csendes, kedvelt részen egyszintes, igényes és egyedi kivitelezésű nappali+ 3 szobás, A+ energetika besorolású, újépítésű ikerházi egység saját 593m2-es telken, 2026 ÁPRILISI ÁTADÁSSAL eladó!

Az ingatlan könnyen megközelíthető, a környék tömegközlekedése jó, a településen minden elérhető, ami a kényelmes életvitelhez elengedhetetlen ( orvosi rendelő, gyógyszertár, posta, bölcsőde, óvoda, polgármesteri hivatal, boltok, piac, fitness-terem, tanösvény, Kastély Park, sportpálya, szépészeti szolgáltatások, kutyaiskola és panzió, cukrászdák).

A ház tágas, világos, körbe napozott, a mai kor igényszintjének megfelelő, minőségi anyagokból, korszerű dizájnnal és kialakítással készül.

Műszaki paraméterek:
- a homlokzati falak 30 cm vastag Viablokk falazatúak 10cm vastag szigeteléssel, a válaszfalak szintén nem könnyített szerkezetűek
- a lábazat 5cm vastag XPS szigetelést kap
- a tetőszerkezet szeglemezes, könnyített födém készül Isocell cellulóz szigeteléssel, Bramac beton cserép fedéssel. ( a padlástér felár ellenében opcionálisan rakodhatóvá/járhatóvá tehető)
- A fűtést hőszivattyú biztosítja padlófűtéses hőleadással, melynek köszönhetően a ház H-tarifás kedvezményben részesül fűtési szezonban.
- a nyílászárók műanyagok, 6 kamrás, 3 rétegű üvegezésűek

A ház hideg,-meleg burkolatjai, szaniterei, nyílászárók színei, homlokzati színei előre megadott ár kategóriákon belül választhatók.
(Egyéb speciális munkák kivitelezésének igénye (pl: klíma, szellőző rendszer, központi porszívó, kandalló, kémény kialakítás, víztisztító kiállás stb.) külön egyeztetést igényel)
(részletes műszaki leírás igényével kapcsolatban, kérem írjon üzenetet)

Elosztását tekintve 103 m2 hasznos alapterületű
Előszoba, amerikai konyhás nappali kamrával, 3db 9m2-es hálószoba, vendég wc és háztartási helyiség kerül kialakításra. A házhoz kapcsolódik egy fedett terasz és egy 21m2-es terasz.

Fontosabb paraméterek:
● 2026 ÁPRILISI átadás
● 593 m2 önálló telekterület
● Nappali + 3 hálószoba
● H tarifás villany
● Hőszivattyú
● Alacsony rezsiköltség

Megbízható és tapasztalt ingatlanfejlesztő, kivitelező jegyzi a ház építését, számtalan referenciaépülettel rendelkezik. A vásárláshoz, a jelenleg aktuális családok „újépítésű” otthonteremtésére vonatkozó összes támogatás igénybe vehető.

AZ INGATLAN ALKALMAS 5%-os ÁFA, Otthon Start (3%-os), CSOK, CSOK HITEL IGÉNYBEVÉTELÉRE!
Eladási irányár: 81,9 M Ft


ELÉRHETŐ SZABAD HÁZAK:

,,A" IKERHÁZ (2026 áprilisi átadás)
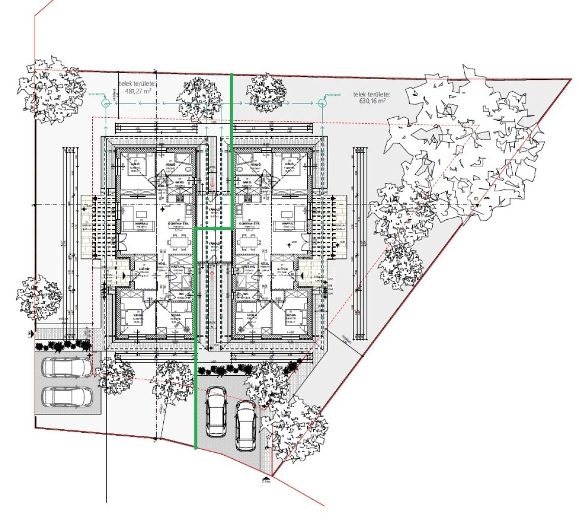
- 1. LAKÓEGYSÉG ----- (CSAK A KÜLSŐ TÁROLÓ FALA KÖZÖS A SZOMSZÉDOS LAKÓEGYSÉGGEL)
ÖSSZESEN 116m2 ----- NAPPALI+ 3 SZOBA ----- 630m2 TELEK
81 900 000 FORINT
- 2. LAKÓEGYSÉG ----- (CSAK A KÜLSŐ TÁROLÓ FALA KÖZÖS A SZOMSZÉDOS LAKÓEGYSÉGGEL)
ÖSSZESEN 116m2 ----- NAPPALI+ 3 SZOBA ----- 481m2 TELEK
79 900 000 FORINT

,,B" IKERHÁZ (2026 év végi átadás)
- 1. LAKÓEGYSÉG
ÖSSZESEN 127m2 ----- NAPPALI +3 SZOBA ----- 593m2 TELEK
81 900 000 FORINT
- 2. LAKÓEGYSÉG
ÖSSZESEN 127m2 ----- NAPPALI +3 SZOBA ----- 460m2 TELEK
79 900 000 FORINT

ÖNÁLLÓ HÁZ (2026 áprilisi átadás)
ÖSSZESEN 131m2 ----- NAPPALI +4 SZOBA ----- 1106m2 TELEK
95 000 000 FORINT


Az ingatlan adottságainak, fekvésének köszönhetően alkalmas továbbá vállalkozásra, üzleti vagy befektetési célra, hiszen akár bérbe adható, vagy üzlet, szolgáltatás (pl: orvosi rendelő, fodrász, kozmetika, irodai tevékenység,(Csendes tevékenység engedélyezett).

Ha felkeltette érdeklődését, hívjon bizalommal, éljen ingyenes, személyre szabott hitelügyintézés szolgáltatásunkkal. Segítünk továbbá adásvételhez szükséges ügyvédi közreműködésben, energetikai tanúsítvány, valamint értékbecslés elkészítésében.

For English information please send a message.
Kruller Petra

Kruller Petra

Hívjon bizalommal

+36-20-583-Mutasd!

További hirdetéseim

Ingatlaniroda
GDN Ingatlanhálózat - Märcz Kft
+36 22 503 000

Küldjön üzenetet

Visszahívást kérek

Hasonló ingatlanok