Eladó Lakás Budapest V. kerület - Honvéd utca

101 m2Alapterület 3 Szoba
190 000 000 Ft Ár
390404Azonosító
További adatok

Utcai Kilátás

Felújított Állapot

Tégla Szerkezet

Házközponti Fűtés

Dupla komfort Komfort

Utcán, közterületen Parkolás

Emelet 5

Van Lift

Kiváló Tömegközlekedés

Nem Amerikai konyhás

Nincs Kertkapcsolat

1905 Építés éve

Közös költség 59 820 Ft

Keleti Tájolás

Hitelkalkuláció – a részletekért kattintson valamelyik bank logójára!

Eladó felújított, tágas, 3 szobás lakás Budapest szívében
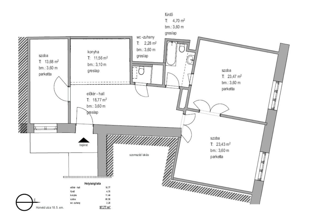
Ritka lehetőség a belváros egyik legkedveltebb részén! A Honvéd utcában kínálunk megvételre egy összesen 101 m²-es, teljeskörűen felújított, nagy terekkel rendelkező, 3 szobás, 2 fürdőszobás gyönyörű otthont.
A lakás 2025-ben átfogó felújításon esett át, melynek során új műanyag, redőnyös kültéri nyílászárókat, modern burkolatokat és minőségi szanitereket kapott. Az ingatlan elosztása rendkívül praktikus: különnyíló szobák, egy kádas és egy zuhanyzós fürdőszoba is szolgálja a kényelmet – így családoknak, pároknak és akár kiadásra is ideális választás.
Az 5. emeleti elhelyezkedésnek köszönhetően a lakás világos, csendes, a jó állapotú, karbantartott társasház pedig lifttel rendelkezik, ami még kényelmesebbé teszi a mindennapokat. A közös költség tartalmazza a víz és fűtés díját.
Főbb jellemzők:
• Alapterület: 101 m²
• Elosztás: 3 szoba
• 2 fürdőszoba (kád + zuhany)
• 2025-ben teljeskörű felújítás
• Új műanyag nyílászárók, redőnyök
• 5. emelet, liftes ház
• Csendes, tágas, azonnal költözhető
Irányár: 190.000.000 Ft
Ha szeretnél egy frissen felújított, elegáns és kiváló lokációjú lakást Budapest belvárosában, ne hagyd ki ezt a lehetőséget! Kiváló befektetés és kényelmes otthon egyben.
Fehér Judit

Fehér Judit

Hívjon bizalommal

+36-70-376-Mutasd!

Beszélt nyelvek:

További hirdetéseim

Ingatlaniroda
GDN Ingatlanhálózat - REGION
+36 1 225 1184

Küldjön üzenetet

Visszahívást kérek

Hasonló ingatlanok