Eladó Családi ház Sajószentpéter - Szondy György utca

169 m2Alapterület 3 + 1 Szoba
119 000 000 Ft Ár
386061Azonosító
További adatok

956 m2 Telek

Kertre néző Kilátás

Új Állapot

Blokkos szerkezet Szerkezet

27 m2 Erkély/terasz

Megújuló energia Fűtés

Összkomfort Komfort

Saját garázs Parkolás

Tömegközlekedés

Amerikai konyhás

Van Kertkapcsolat

2025 Építés éve

Nyugati Tájolás

Hitelkalkuláció – a részletekért kattintson valamelyik bank logójára!

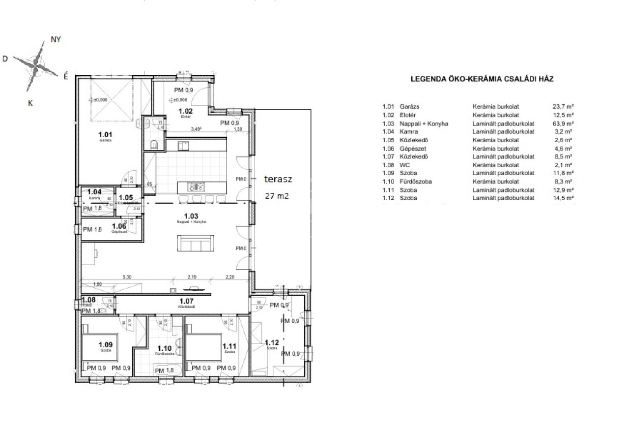
Új építésű ÖKO-KERÁMIA családi ház ELADÓ Sajószentpéteren, csendes utcában, de a városközponthoz közel!

A ház három különálló szobával és egy 60 négyzetméteres nappali-étkező-konyhával rendelkezik. Emellett egy 24 négyzetméteres garázs, és egy impozáns 27 négyzetméteres terasz is a házhoz tartozik.

A házban több zónás elektromos padlófűtés található, zónánként termosztáttal ellátva, továbbá fokozott hőszigetelésű hat légkamrás nyílászárók. A rezsiköltség minimalizálása és a fenntarthatóság érdekében közel 15 kWh-nyi napelem rendszer biztosítja az energiát.

A külső falak megerősített kerámia kompozit anyagból készültek, melyek hőszigetelő képessége már önmagában is az átlagostól kedvezőbb, de ezen felül az épület 13 cm-es, a födém pedig 40 cm-es kőzetgyapot szigetelést kapott. A tető szerkezete cserepes lemez. Kiemelendő még az az okos szellőzőrendszer, amely a nappali-étkező-konyha helyiségében található.

A 956 m2-es telek parkosításra előkészítve várja leendő tulajdonosát, az utcafront felől betonkerítéssel övezve, járdával és térkövezve. A telekre a garázshoz vezető kapun kívül egy másik kapun keresztül is be lehet parkolni, így egy vendég autónak is van hely.

Az ingatlan alkalmas családalapítás előtt álló fiatal pároknak, illetve több gyermekes családoknak egyaránt. A ház Miskolchoz és Kazincbarcikához is közel van, egyesíti a vidék csendességét és a városi infrastruktúra iránti igényeket.

Ha felkeltette az érdeklődését az ingatlan, keressen bizalommal! Ha önnek is van eladó ingatlana, az értékesítésben is állok rendelkezésre!
Nagy-Hankó Krisztina

Nagy-Hankó Krisztina

Hívjon bizalommal

+36-30-950-Mutasd!

További hirdetéseim

Ingatlaniroda
GDN Ingatlanhálózat - Demeter Ingatlanközpont

Küldjön üzenetet

Visszahívást kérek

Hasonló ingatlanok