Eladó Lakás (téglaépítésű) Budapest VI. kerület - Csengery utca

107 m2Alapterület 4 Szoba
144 900 000 Ft Ár
388284Azonosító
További adatok

Utcai Kilátás

Felújított Állapot

Tégla Szerkezet

Gáz (cirkó) Fűtés

Dupla komfort Komfort

Utcán, közterületen Parkolás

Emelet 1

Nincs Lift

Kiváló Tömegközlekedés

Amerikai konyhás

Nincs Kertkapcsolat

1970 Építés éve

Közös költség 25 000 Ft

Hitelkalkuláció – a részletekért kattintson valamelyik bank logójára!

Eladó elegáns, felújított nagypolgári lakás Budapest szívében

Budapest belvárosában, a VI. kerület egyik legkedveltebb részén kínálunk megvételre egy ízlésesen felújított, 1. emeleti, tágas polgári lakást.
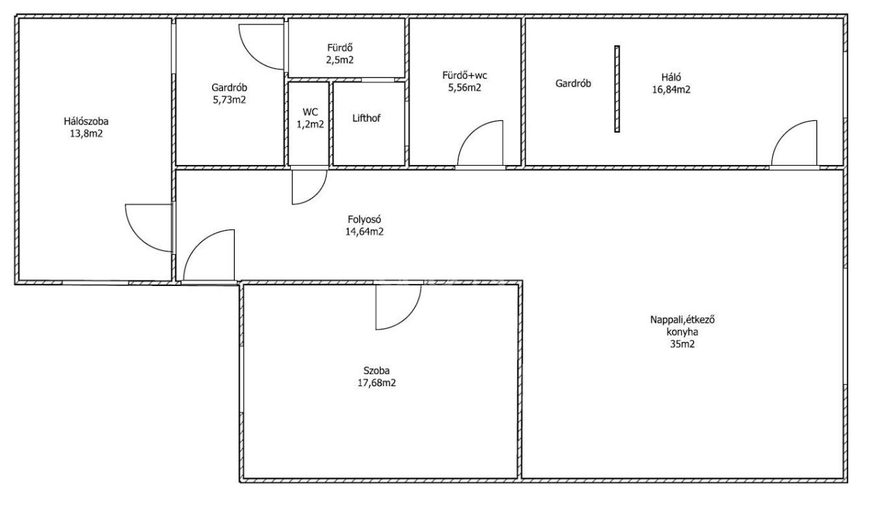
Az ingatlan 107 négyzetméteres, nappalival és 3 külön nyíló szobával rendelkezik, így ideális családok, befektetők vagy akár irodai célra is.

A lakás teljes körű felújításon esett át, modern burkolatokkal, minőségi anyagokkal és harmonikus színvilággal. A terek világosak, jól tagoltak, a klasszikus polgári hangulat és a modern kényelem tökéletes összhangban van.

A társasház rendezett, a környék kiváló infrastruktúrával rendelkezik – néhány perc sétára található az Andrássy út, éttermek, kávézók, kulturális központok és tömegközlekedési csomópontok.

Főbb jellemzők:

Alapterület: 107 m²

Emelet: 1.

Elrendezés: nappali + 3 külön nyíló szoba

Teljeskörű felújítás

Igényes, modern kialakítás

Kiváló lokáció a belváros szívében

Ez a lakás igazi ritkaság a piacon — egyedülálló lehetőség, ha eleganciát és kényelmet keres Budapest központjában!
Simon Barbara

Simon Barbara

Hívjon bizalommal

+36-70-704-Mutasd!

Beszélt nyelvek:

További hirdetéseim

Ingatlaniroda
GDN Ingatlanhálózat - Érdi Ingatlaniroda

Küldjön üzenetet

Visszahívást kérek

Hasonló ingatlanok