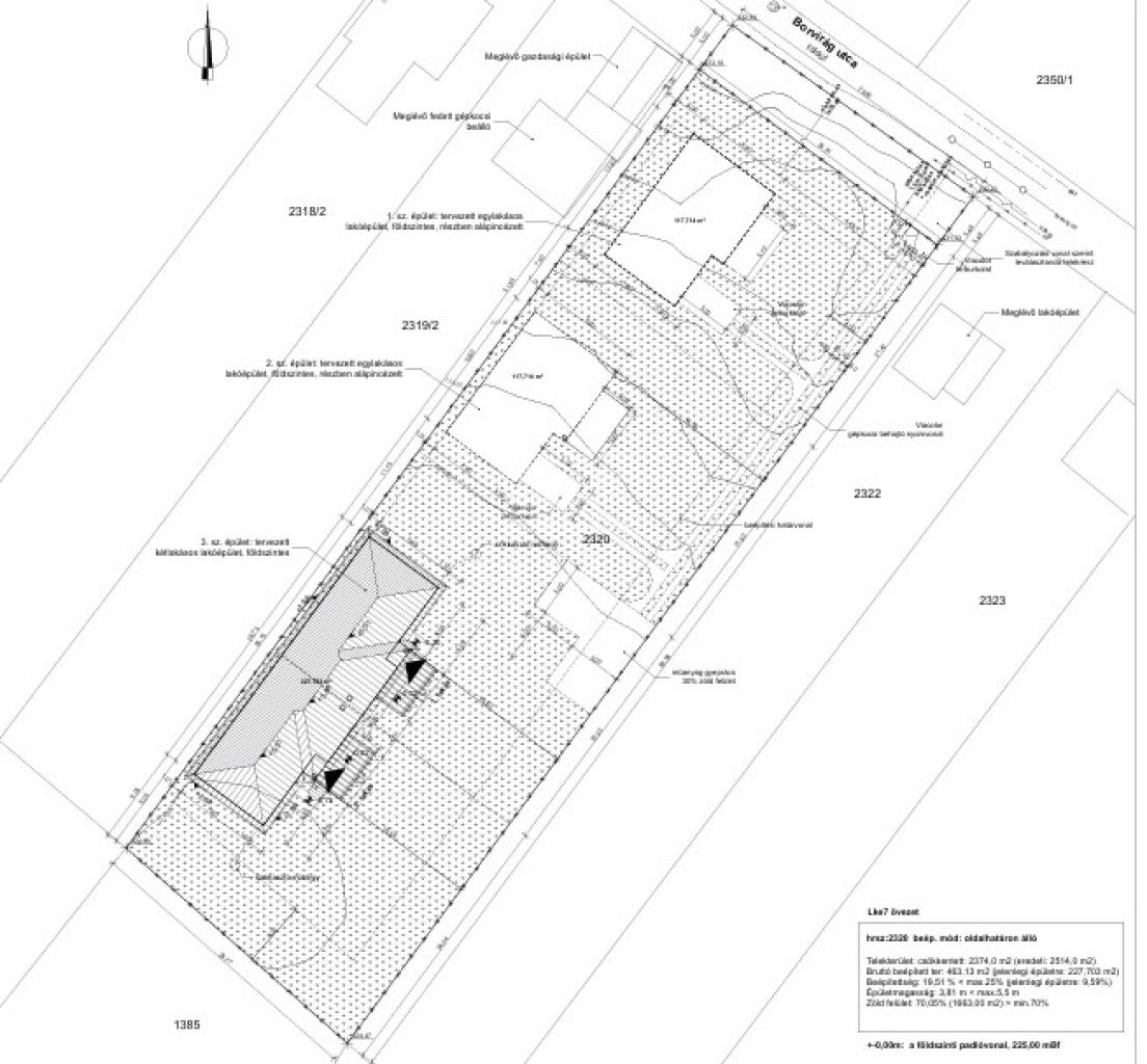
Eladó Ikerház Mogyoród - Borvirág utca

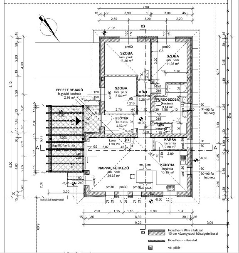
122 m2Alapterület 4 Szoba
114 900 000 Ft Ár
387295Azonosító
További adatok

606 m2 Telek

Panoráma Kilátás

Új Állapot

Tégla Szerkezet

20 m2 Erkély/terasz

Hőszivattyú Fűtés

Összkomfort Komfort

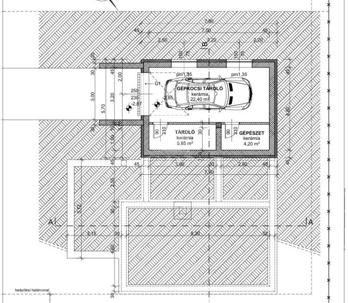
Saját garázs Parkolás

Közepes Tömegközlekedés

Amerikai konyhás

Van Kertkapcsolat

2026 Építés éve

Délkeleti Tájolás

Hitelkalkuláció – a részletekért kattintson valamelyik bank logójára!

CSEND, NYUGALOM, MADÁRCSICSERGÉS...

Mogyoród közkedvelt részén REMEK ÁR/ÉRTÉK ARÁNYÚ...

ÖNÁLLÓ 4 SZOBÁS CSALÁDI HÁZ ELADÓ !

BRUTTÓ 142 nm, 3 KÜLÖNNYÍLÓ SZOBA + amerikai konyhás nappali, terasz, garázs...

A ház 30-as xtherm téglából épült, szigetelése 15cm, Bramac tetőcserép fedéssel.
HŐSZIVATTYÚs fűtési rendszerrel, valamint KLÍMÁval kerül átadásra.

Tervezett átadás: 2026. DECEMBER 31.
NEM A KIVITELEZŐTŐL FÜGG, Ő 6 HÓNAP ALATT MEGÉPÍTI!

HITELEZHETŐ, CSOK KÉPES ÉS RUGALMASAN MEGTEKINTHETŐ!
Kovács Krisztián

Kovács Krisztián

Hívjon bizalommal

+36-20-361-Mutasd!

További hirdetéseim

Ingatlaniroda
GDN Ingatlanhálózat - Sashalom

Küldjön üzenetet

Visszahívást kérek

Hasonló ingatlanok