Eladó Családi ház Mogyoród - Mátyás király út

191 m2Alapterület 6 Szoba
189 900 000 Ft Ár
384816Azonosító
További adatok

788 m2 Telek

Panoráma Kilátás

Jó állapotú Állapot

Tégla Szerkezet

67 m2 Erkély/terasz

Gáz (cirkó) Fűtés

Összkomfort Komfort

Saját beálló Parkolás

Tömegközlekedés

Amerikai konyhás

Van Kertkapcsolat

2018 Építés éve

Délkeleti Tájolás

Hitelkalkuláció – a részletekért kattintson valamelyik bank logójára!

 ELADÓ PANORÁMÁS CSALÁDI HÁZ MOGYORÓDON – TÁGAS ÉLETTEREK, KORSZERŰ FELSZERELTSÉG, KIVÁLÓ MEGKÖZELÍTHETŐSÉG

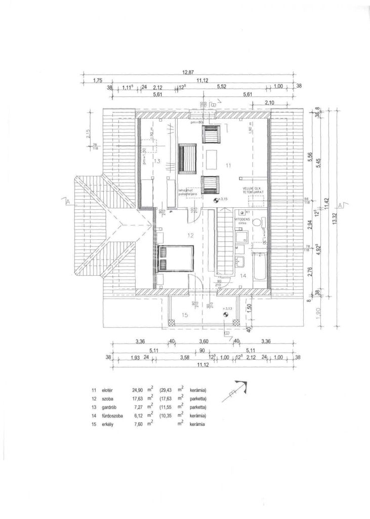
Eladásra kínálunk egy kiváló állapotú, 191 m²-es családi házat Mogyoród egyik legkedveltebb utcájában. Az ingatlan egy 788 m²-es, gondozott telken helyezkedik el, lenyűgöző panorámás kilátással.

A ház ideális választás nagycsaládosok számára, hiszen összesen 6 szobával rendelkezik, amelyek sokféle elrendezést és funkciót lehetővé tesznek (hálószobák, dolgozószoba, gyerekszobák stb.).

Főbb jellemzők:
- 191 m² hasznos alapterület
- 6 tágas szoba
- 788 m²-es kert
- 8 m²-es erkély és 59 m²-es terasz – tökéletes pihenéshez, grillezéshez vagy baráti összejövetelekhez
- Modern fűtési rendszer: gáz cirkó padlófűtéssel
- Hűtő-fűtő klímaberendezések a maximális komfortért télen-nyáron
- Kertvárosias, csendes környezet barátságos szomszédsággal
- Kiváló infrastruktúra – Mogyoród központja, iskola, bolt, buszmegálló rövid sétával elérhető
- Budapest könnyedén megközelíthető: a Városliget kb. 20 perc alatt elérhető autóval.

Ez az ingatlan tökéletes választás azoknak, akik szeretnének elvonulni a város zajától, mégis fontos számukra a jó közlekedés és a korszerű, kényelmes otthon.

Amennyiben kérdése van, vagy szeretné megtekinteni ezt a panorámás, tágas, minden igényt kielégítő családi házat, keressen bizalommal!
Vereb Attila

Vereb Attila

Hívjon bizalommal

+36-20-263-Mutasd!

További hirdetéseim

Ingatlaniroda
GDN Ingatlanhálózat - Nexus
+36209609602

Küldjön üzenetet

Visszahívást kérek

Hasonló ingatlanok