Eladó Családi ház Lakitelek - belváros

155 m2Alapterület 4 Szoba
54 900 000 Ft Ár
387436Azonosító
További adatok

711 m2 Telek

Utcai Kilátás

Jó állapotú Állapot

Tégla Szerkezet

9 m2 Erkély/terasz

Gáz (cirkó) Fűtés

Összkomfort Komfort

Saját garázs Parkolás

Tömegközlekedés

Nem Amerikai konyhás

Van Kertkapcsolat

1970 Építés éve

Északnyugati Tájolás

Hitelkalkuláció – a részletekért kattintson valamelyik bank logójára!

Otthonok és megoldások!

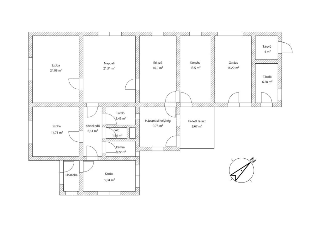
Lakitelek központjában eladó egy karbantartott és korszerűsített 155 nm, nappali + 3 szobás családi ház 711 nm telken.

Az ingatlan eredeti része a 70-es években épült vályogfalazattal, stabil téglaalapon. 2002-ben egy tégla falazatú, beton alapon nyugvó lakrészt is hozzáépítettek, ekkor az épület egységes tetőszerkezetet kapott, a tetőtér pedig igény szerint beépíthető.

A ház teljes villany- és vízvezeték rendszere korszerűsítve lett, az ingatlan teljesen összközműves. Ezen felül egy fúrt kút és egy időzíthető locsolórendszer is segíti a kert karbantartását.

A hőszigetelt nyílászárók redőnnyel és szúnyoghálóval felszereltek.
A kellemes hőérzetről gáz és vegyestüzelésű kazán gondoskodik padlófűtéssel és radiátorokkal kombinálva, valamint egy hangulatos cserépkályha is rendelkezésre áll.

A lakótérhez egy fedett terasz, zárt garázs, valamint több tárolóhelyiség is tartozik, így a biztonságos parkolás és barkácsolás is könnyedén megoldható.

A ház aszfaltozott, csendes utcában található, barátságos szomszédságban. Ideális választás lehet családosoknak, de akár két generáció számára is tökéletes lehetőséget kínál.

Ne hagyja ki ezt a lehetőséget – kérjen időpontot még ma!
Kocsis Zoltán

Kocsis Zoltán

Hívjon bizalommal

+36-30-667-Mutasd!

További hirdetéseim

Ingatlaniroda
GDN Ingatlanhálózat - STOP Ingatlan
+36 76 536 091

Küldjön üzenetet

Visszahívást kérek

Hasonló ingatlanok