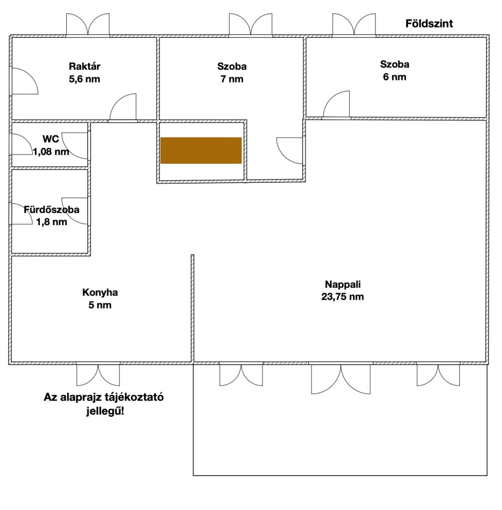
| 78 m2Alapterület | 3 + 3 Szoba |
| 62 900 000 Ft Ár | |
| 393180Azonosító | |
| További adatok | |
370 m2 Telek
Kertre néző Kilátás
Jó állapotú Állapot
Könnyűszerkezet Szerkezet
20 m2 Erkély/terasz
Elektromos Fűtés
Komfort Komfort
Saját beálló Parkolás
Gyenge Tömegközlekedés
Nem Amerikai konyhás
Van Kertkapcsolat
1982 Építés éve
Délnyugati Tájolás