Eladó Családi ház Kiskunlacháza - Hársfa utca

103 m2Alapterület 5 Szoba
77 250 000 Ft Ár
385468Azonosító
További adatok

536 m2 Telek

Kertre néző Kilátás

Új Állapot

Tégla Szerkezet

16 m2 Erkély/terasz

Hőszivattyú Fűtés

Dupla komfort Komfort

Saját beálló Parkolás

Közepes Tömegközlekedés

Amerikai konyhás

Van Kertkapcsolat

2025 Építés éve

Déli Tájolás

Hitelkalkuláció – a részletekért kattintson valamelyik bank logójára!

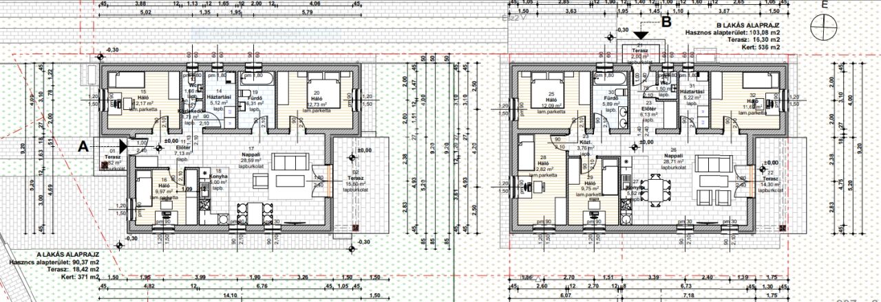
Kiskunlacháza új építésű házai között, közös fal nélküli "ikerház jellegű" " B" belső családi ház eladó.

KIVÁLÓ KIVITELEZŐ, VERSENYKÉPES ÁRON, KIVÁLÓ OTTHONT AJÁNL ÖNNEK! CSOK +, H-TARIFA, HŐSZIVATTYÚ!

Az otthon nettó 103,08 négyzetméteres, ehhez + terasz 16,3 m2 kapcsolódik.
Helyiségei: nappali 28,71 m2, szoba 11,69 m2, szoba 12,09 m2, szoba 9,75 m2, szoba 12,82 m2, konyha 5,52 m2, fürdő szoba 5,89 m2, előtér 6,13 m2, háztartási helyiség 5,22 m2, wc 1,5 m2, közlekedő 3,76 m2, terasz 2,05 m2, terasz 14,30 m2.

A telek ideális 536 négyzetméteres, a szomszédot csak akkor látjuk és halljuk ha mi is szeretnénk, a teraszon zavartalanul pihenhetünk.

Az otthon beton alapra, tégla falazattal, fa födémmel, beton cserép fedéssel épül meg.
Az épület külső nyílászárói (ablakok) műanyag szerkezetűek 6 légkamrás 3 rétegű hőszigetelt üvegezéssel.
A bejárati biztonsági ajtó több ponton záródó.
A homlokzaton 10 cm GRAFITOS Dryvit rendszerű, a födémben 20 cm kőzetgyapot, míg a padlóban 10 cm lépésálló nikecell szigetelés kerül beépítésre.
Fűtése/ hűtése, meleg vízellátása hőszivattyúval (levegő) történik padlófűtéssel. A H tarifa kedvező üzemeltetési költséget biztosít.
Burkolatok választhatóak keretösszegig felette a vevő kompenzál. Szaniterek keretösszegig választhatók.
A kert alap kertrendezéssel kerül átadásra, viacolorozott autóbeállóval és személybejáróval.

A burkolatok, szaniterek választhatóak, a kivitelező igyekszik minden vásárlói igényt kielégíteni.

Első "A" családi ház 371 m2 kert, 90,37 m2 lakótér ELKELT
Hátsó "B" családi ház 536 m2 kert,103,08 m2 lakótér ára: 77.250.000 ft

Várom megtisztelő hívását!

FINANSZÍROZÁS:
Nálunk mindent egy helyen intézhet:
- hivatalos ingatlanközvetítés;
- szakszerű jogi képviselet;
- profi CSOK-PLUSZ, és hitelügyintézés: 16 Bank, több mint 100 konstrukció;

A részletes adatvédelmi tájékoztató folyamatosan elérhető a gdn ingatlan adatvédelmi oldalon.
Csík Zsolt

Csík Zsolt

Hívjon bizalommal

+36-30-641-Mutasd!

További hirdetéseim

Ingatlaniroda
GDN Ingatlanhálózat - SZIGET
+36 24 656 320

Küldjön üzenetet

Visszahívást kérek

Hasonló ingatlanok