Eladó Családi ház Királyszentistván - Panorámás, újépítés, tervezhető

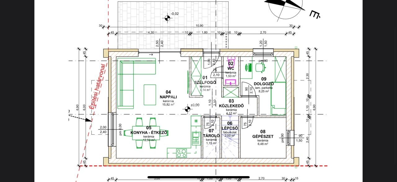
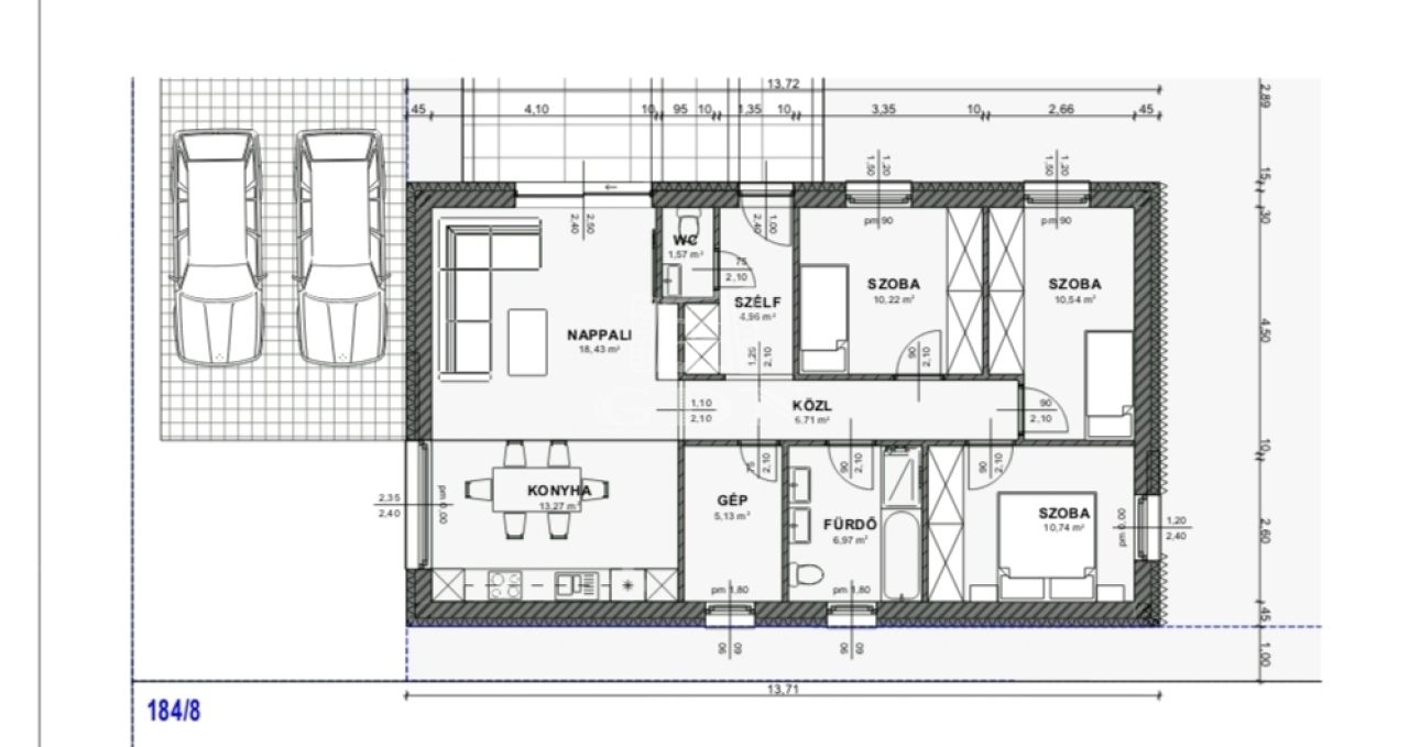
80 m2Alapterület 3 Szoba
83 600 000 Ft Ár
392337Azonosító
További adatok

400 m2 Telek

Panoráma Kilátás

Új Állapot

Tégla Szerkezet

Elektromos Fűtés

Összkomfort Komfort

Saját garázs Parkolás

Tömegközlekedés

Amerikai konyhás

Van Kertkapcsolat

2026 Építés éve

Hitelkalkuláció – a részletekért kattintson valamelyik bank logójára!

Álmaid otthona Királyszentistváni panorámával – új építésű családi házak elérhető áron!

Királyszentistván legkedveltebb, teljesen csendes zsákutcájában kínálunk most 5 darab új építésű, modern családi házat, ahol a nyugalom és a természet közelsége találkozik a komfortos, modern életstílussal.

Minden ház 80–90 nm-es, napelemes, padlófűtéssel felszerelt, és a belső tér teljesen a saját igényeid szerint tervezhető. Így lehetőséged van arra, hogy minden ház pontosan úgy alakuljon, ahogyan megálmodtad.

Ár: 1 045 000 Ft/nm
Átadás: 2026 év vége
Környezet: zsákutca, csendes, nyugodt
Különlegesség: panorámás kilátás, világos, modern terek

Ez a lakópark tökéletes választás, ha szeretnél egy csendes, barátságos környezetben élni, de mégis közel a város és a mindennapi szolgáltatások. A házak új építésűek, így energiatakarékosak és hosszú távon is költséghatékonyak.
100 nm-es vagy annál nagyobb ingatlanra egyedi árak és tervek kérhetők.
Az ár tartalmazza az 5 Kw napelem rendszert és az 1 db 3,5 Kw klímát.
Beltéri ajtó 70 000 Ft / DB
Meleg burkolat :8000 Ft/nm
Hideg burkolat: 11 000 Ft/nm


Királyszentistván rendkívül jó lokációjú település, közel a Balatonhoz, Veszprémhez.

Ne hagyd ki a lehetőséget! Tervezd meg álmaid otthonát Királyszentistváni panorámával, és élvezd a békés, nyugodt életet egy modern, fenntartható házban.

Részletes műszaki leírásért, valamint további információkért hívjon bizalommal!
Simon Erika

Simon Erika

Hívjon bizalommal

+36-70-948-Mutasd!

További hirdetéseim

Ingatlaniroda
GDN Ingatlanhálózat - Zala Ingatlaniroda
+36 70 883 0574

Küldjön üzenetet

Visszahívást kérek

Hasonló ingatlanok