Eladó Lakás (téglaépítésű) Kaposvár - Természetközeli új építésű otthon

52 m2Alapterület 3 Szoba
49 700 000 Ft Ár
386753Azonosító
További adatok

Kertre néző Kilátás

Építés alatt Állapot

Tégla Szerkezet

2 m2 Erkély/terasz

Hőszivattyú Fűtés

Összkomfort Komfort

Garázs/beálló vásárolható Parkolás

Emelet 2

Legfelső emelet

Nincs Lift

Kiváló Tömegközlekedés

Amerikai konyhás

Nincs Kertkapcsolat

Tetőtéri ingatlan

2027 Építés éve

Hitelkalkuláció – a részletekért kattintson valamelyik bank logójára!

Kaposváron a keresett és kedvelt Csillagfény lakópark 2. ütemében, magával ragadó zöld környezetben kínálok megvételre egy új építésű társasházi lakást.

Különleges akció keretében, az önerővel (szakaszos finanszírozással) történő vásárlás esetén most a vételár 4%-a elengedésre kerül.

A festői szépségű Tókaji parkerdő ölelésében található ingatlantól a belváros gépkocsival pár perc alatt elérhető.
A megvalósuló zárt lakópark és környezete ideális feltöltődésre, pihenésre, minden generáció számára egyaránt remek életteret biztosíthat.

A második első ütemben épülő 11 lakásos, 3 szintes társasház minőségi anyagokból és korszerű műszaki tartalommal kerül kivitelezésre.

A lakások a jól átgondolt, ötletes tervezésnek köszönhetően élhető tereket kaptak, elosztásuk nagyszerű.

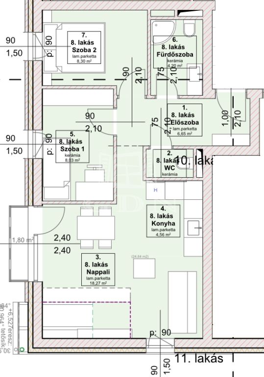
A B8 megjelölésű második emeleti lakás 51,4 m2 alapterületű. Az amerikai konyhás nappalin túl 2 szoba, fürdőszoba, mellékhelyiség, és előszoba kapott teret a lakásban. A közösségi térből közelíthető meg a 2 m2-es erkély.

A közel nulla hőveszteségű társasházba beépítésre kerülő nyílászárók korszerű 3 rétegű üvegezéssel lesznek ellátva, a fűtésről (és a hűtésről is) alacsony fogyasztású, magas SCOP értékű, H tarifával szerelt klímák gondoskodnak majd, így a lakások várható fenntartási költsége kifejezetten alacsony lesz.

A lakások melegvíz ellátását energiahatékony okos bojlerek biztosítják.

Az erkélyre vezető nyílászárók elektromosan vezérelhető redőnyt kapnak.

A választható beltéri nyílászárók és a burkolatok is a minőséget és a mai kornak megfelelő esztétikát képviselik.

A lakáshoz tároló (3 m2) 1.350.000.Ft, míg beállóhely 1.530.000. Ft ellenében vásárolható.

A társasház átadási határideje: 2027.első negyedéve.

További információért forduljon hozzám bizalommal!
Zsobrák Zita

Zsobrák Zita

Hívjon bizalommal

+36-30-328-Mutasd!

További hirdetéseim

Ingatlaniroda
GDN Ingatlanhálózat - Kaposingatlan
+36 82 424 000

Küldjön üzenetet

Visszahívást kérek

Hasonló ingatlanok