Eladó Családi ház Érd - ÉRDLIGET

75 m2Alapterület 3 Szoba
64 900 000 Ft Ár
382914Azonosító
További adatok

535 m2 Telek

Kertre néző Kilátás

Közepes Állapot

Tégla Szerkezet

20 m2 Erkély/terasz

Gáz (konvektor) Fűtés

Összkomfort Komfort

Saját garázs Parkolás

Kiváló Tömegközlekedés

Amerikai konyhás

Van Kertkapcsolat

1980 Építés éve

Nyugati Tájolás

Hitelkalkuláció – a részletekért kattintson valamelyik bank logójára!

--- ÉRDLIGETEN, CSENDES MELLÉK UTCÁBAN, VASUTHOZ, BUSZOKHOZ ÉS MINDENHEZ IS KÖZEL, JÓ ADOTTSÁGÚ TELEK, FELUJITANDÓ HÁZZAL ---


AZ INGATLAN ÉRDLIGET VASUTÁLLOMÁSTÓL PÁR UTCÁNYIRA TALÁLHATÓ, CSENDES MELLÉK UTCÁBAN.

A telek sík, 20 méteres utcafrontja van.

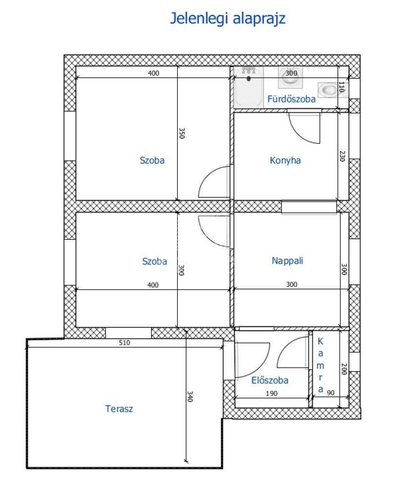
A telken található egy 55 nm-s tégla ház terasszal és egy különálló 20 nm-es, szintén tégla építésű, különálló épület.

A HÁZ elrendezése 2 szoba, konyha, étkező, fürdőszoba, előszoba.
Fűtése gázkonvektorral és kandallóval megoldott.

A KISHÁZAT nyárikonyhaként használták. Ide is be vannak vezetve a közművek. Ez az épület egy helyiségből és egy toalettből áll.
Térképen mindkét épület fel van tüntetve.

A ház és a kisház is szerkezetileg stabil, nincsenek repedések, felázás vagy penészesedés.

A telek összközműves, víz, gáz, csatorna, villany bevezetve.
A kertben fúrt kút is van.


A TELEK Vt-1/l ÖVEZETBEN TALÁLHATÓ.
Ha nagyobb ingatlanra vágyik, a meglévő ház elbontható, vagy bővíthető.

Vt-1/l övezeti besorolású telkek:
- beépítési módja: szabadon álló
- legnagyobb beépíthetősége: 50 %
- zöldfelületi aránya: 30 %
- homlokzat magassága: 7,5 m

A jelenleg érvényben lévő építési korlátozások miatt, csak önálló családi ház építhető rá, vagy a jelenlegi bővíthető.


AZ INGATLAN IRÁNYÁRA 64,9 M Ft

AMENNYIBEN JÓ HELYEN LÉVŐ TELKET KERES, EZ AZ.

További részletekkel, megtekintéssel kapcsolatban, keressen bizalommal!





AMENNYIBEN NEM RENDELKEZIK A TELJES VÉTELÁRRAL, segítünk Önnek megtalálni a legjobb megoldást!
BANKFÜGGETLEN hitelcentrumunk minden elérhető bank és hitelintézet ajánlatát versenyezteti az Ön kedvéért, ráadásul díjmentesen. Önnek nincs más dolga, mint elbeszélgetni munkatársunkkal, aki a hallott információk alapján versenyre hívja a bankokat, hogy Ön hosszú távon is a legjobb konstrukciót kaphassa. A legjobb ajánlatokból végül Ön választhatja ki a nyertest. Munkatársaink sokéves szakmai tapasztalattal várják Önt, előre egyeztetve akár a normál munkaidő után is.
Dora Kriszta

Dora Kriszta

Hívjon bizalommal

+36-70-370-Mutasd!

További hirdetéseim

Ingatlaniroda
GDN Ingatlanhálózat - Sasad
+36-30-834-4623

Küldjön üzenetet

Visszahívást kérek

Hasonló ingatlanok