Eladó Családi ház Budapest XXI. kerület - Mátyás utca

349 m2Alapterület 5 Szoba
299 000 000 Ft Ár
388434Azonosító
További adatok

1296 m2 Telek

Udvari Kilátás

Újszerű Állapot

Tégla Szerkezet

Gáz (cirkó) Fűtés

Összkomfort Komfort

Saját garázs Parkolás

Tömegközlekedés

Amerikai konyhás

Van Kertkapcsolat

2000 Építés éve

Északkeleti Tájolás

Hitelkalkuláció – a részletekért kattintson valamelyik bank logójára!

CSALÁDI HÁZ ELADÓ CSENDES, KERTVÁROSI KÖRNYEZETBEN – BUDAPEST XXI. KERÜLET, CSEPEL

Eladó egy impozáns családi ház, amely a kerület központjához közel, mégis nyugodt, zöldövezeti környezetben helyezkedik el. A 1296 m²-es, gondozott kert öntözőrendszerrel, dísznövényekkel és hangulatos halastóval várja új tulajdonosát. A kertben fedett terasz és fűthető úszómedence biztosítja a tökéletes kikapcsolódást a melegebb hónapokban.


Főbb adatok:
Telek mérete: 1296 m²

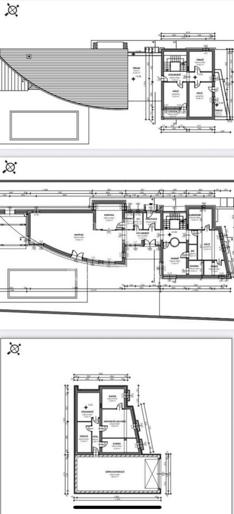
Bruttó alapterület: 426 m²

Nettó alapterület: 349 m²

Szintek: pince + földszint + emelet

Ár: 299.000.000-


Pince – 141 m²
Garázs: 69 m², akár 4 autó kényelmesen elfér

További 6–8 autó parkolása megoldott a garázs előtt

Dolgozószoba saját WC-vel

Háztartási helyiség, kazánház

Tárolóhelyiségek beépített gardróbszekrényekkel


Földszint – 183 m²
Tágas nappali, étkező és konyha kamrával

Vendég WC

Hálószoba, fürdőszoba WC-vel, gardrób

Rekreációs helyiség jakuzzival, szaunával és külön WC-vel

A szint padlótól plafonig érő üvegfelületekkel lett kialakítva, hőszigetelő fóliával ellátva, amely véd a hidegtől, melegtől és a belátástól.

Közvetlen kertkapcsolat a teraszhoz és medencéhez


Emelet – 90 m²
3 külön nyíló hálószoba

Közlekedő és tágas fürdőszoba

A hálószobák és a nappali légkondicionáltak


Egyéb jellemzők:
Azonnal költözhető, tehermentes

Kiváló közlekedés és infrastruktúra

Csendes, családias környék, aktív közösségi élet

Ez a ház ideális választás nagyobb családoknak vagy azoknak, akik prémium kényelmet keresnek kertvárosi környezetben, de nem szeretnének lemondani a város közelségéről.

Ne hagyja ki ezt a különleges lehetőséget – tekintse meg személyesen ezt a gyönyörű, sokoldalú ingatlant!
Vargová Eva

Vargová Eva

Hívjon bizalommal

+36-70-427-Mutasd!

További hirdetéseim

Ingatlaniroda
GDN Ingatlanhálózat - Selling Budapest
+36-70-603-3288

Küldjön üzenetet

Visszahívást kérek

Hasonló ingatlanok