Eladó Lakás Budapest XIII. kerület - Zsilip utca

39 m2Alapterület 1 Szoba
53 990 000 Ft Ár
391989Azonosító
További adatok

Udvari Kilátás

Felújítandó Állapot

Tégla Szerkezet

Gáz (konvektor) Fűtés

Összkomfort Komfort

Utcán, közterületen Parkolás

Emelet 2

Legfelső emelet

Nincs Lift

Kiváló Tömegközlekedés

Nem Amerikai konyhás

Nincs Kertkapcsolat

1950 Építés éve

Közös költség 26 000 Ft

Hitelkalkuláció – a részletekért kattintson valamelyik bank logójára!

Eladó felújítandó téglaépítésű lakás Budapest 13. kerületében a Zsilip utcában.

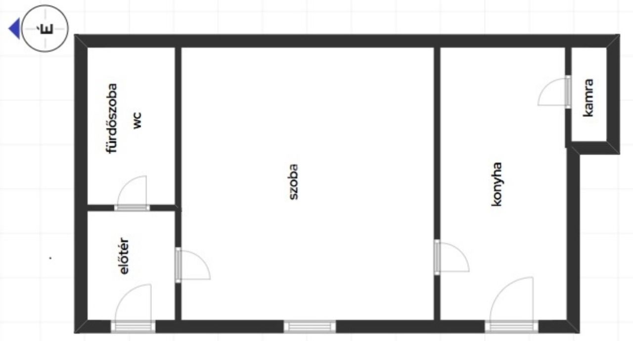
A lakás a társasház 2. emeletén található, 39 m² alapterülettel. Megközelítése függő folyosóról történik, két külön bejáraton keresztül. Az egyik bejáraton egy előszobába érkezünk, ahonnan külön nyílik a szoba, valamint a fürdőszoba WC- vel. A konyha megközelíthető a szobán keresztül, illetve a másik bejárati ajtón át is. A konyhából egy praktikus kis kamra nyílik.

A fűtést gázkonvektor biztosítja, a melegvíz ellátásról a gázkazán gondoskodik.

A lakásból a kilátás parkosított, csendes belső udvarra néző, ahol Hatalmas fa, kiülésre alkalmas padok és gondozott kert várja a lakókat.

Ideális választás lehet befektetőknek, vagy azok számára akik csendes , zöldkertes, urbanisztikus környezetben szeretnének élni. Az infrastruktúra és a közlekedés kiváló az M3 metró néhány perc alatt elérhető.
ID:391989
Csiszér Jolán

Csiszér Jolán

Hívjon bizalommal

+36-30-894-Mutasd!

Beszélt nyelvek:

További hirdetéseim

Ingatlaniroda
GDN Ingatlanhálózat - Best Sellers

Küldjön üzenetet

Visszahívást kérek

Hasonló ingatlanok