Eladó Családi ház Budapest XVII. kerület - Nyugalom és modern kényelem!

83 m2Alapterület 1 + 4 Szoba
138 000 000 Ft Ár
392029Azonosító
További adatok

613 m2 Telek

Udvari Kilátás

Újszerű Állapot

Tégla Szerkezet

11 m2 Erkély/terasz

Gáz (cirkó) Fűtés

Összkomfort Komfort

Saját beálló Parkolás

Tömegközlekedés

Amerikai konyhás

Van Kertkapcsolat

2018 Építés éve

Déli Tájolás

Hitelkalkuláció – a részletekért kattintson valamelyik bank logójára!

Nyugalom és modern kényelem Rákoskerten – újszerű családi ház eladó a XVII. kerületben

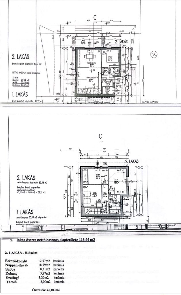
Budapest XVII. kerületének közkedvelt, csendes rákoskerti részén kínálunk megvételre egy kiváló elosztású, újszerű állapotú családi házat, amely 2018-ban épült, és azóta is gondosan karbantartott, szeretettel ápolt otthon.

Már az első lépéseknél érezhető az ingatlan harmonikus hangulata.
A házba belépve az előszobából
– jobbra egy zuhanyzós fürdőszoba,
– balra egy háztartási helyiség és kamra,
– szemben pedig a tágas, világos amerikai konyhás nappali fogad.

A nappaliból közvetlenül nyílik a földszinti hálószoba, az étkező pedig teraszkijáratos, így a belső tér és a kert kapcsolata természetes és kényelmes.

Az emeleten további 3 külön nyíló hálószoba és egy kádas fürdőszoba található, ideális elrendezést biztosítva családok számára.

Műszaki tartalom és kényelem

Gázcirkó fűtés

A földszinten a hidegburkolatos helyiségekben padlófűtés, a szobákban radiátoros hőleadás

Klímaberendezés az emeleten a kellemes nyári hőmérsékletért

Videós kaputelefon a biztonságos beengedéshez

Riasztórendszer előkészített vezetékezéssel

Kültér

A szépen gondozott udvaron egy külön elkerített, hangulatos kerti sütögető rész került kialakításra – tökéletes helyszín családi és baráti összejövetelekhez.

Ez az ingatlan ideális választás mindazoknak, akik a városi élet kényelmét szeretnék ötvözni az otthon nyugalmával és meghittségével. Különösen ajánlott kisgyermekes családok számára, de mindenki számára tökéletes, aki rendezett, modern otthonra vágyik csendes környezetben.

Az ingatlan hitelezhető.
Justus Lilla

Justus Lilla

Hívjon bizalommal

+36-30-491-Mutasd!

További hirdetéseim

Ingatlaniroda
GDN Ingatlanhálózat - GARDEN CITY
+36-70-977-8080

Küldjön üzenetet

Visszahívást kérek

Hasonló ingatlanok