Eladó Fejlesztési terület Budapest XVI. kerület - Bökényföldi út

2 300 m2Alapterület 0 Szoba
42 000 Ft Ár
388512Azonosító
További adatok

Kertre néző Kilátás

Kiváló Tömegközlekedés

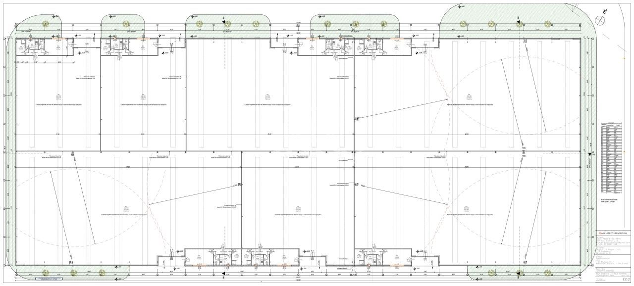
KIVÁLÓ BEFEKTETÉSI LEHETŐSÉG – FEJLESZTÉSI PROJEKT TELJES TERVDOKUMENTÁCIÓVAL!

Budapest XVI. kerületének dinamikusan fejlődő gazdasági és ipari övezetében kínálunk megvételre egy 25.000 m²-es, GKSZ besorolású fejlesztési területet, teljes tervekkel és engedélyezett koncepcióval két modern csarnoképület megvalósítására.

A projekt raktározási és logisztikai funkciókra lett tervezve, összesen 8.000 m² beépített csarnokterülettel, mely két, külön értékesíthető egységre tagolódik: 5700 nm és 2300 nm.

Főbb jellemzők:

25.000 m² összközműves telek. 42.000FT/nm

- Szociális blokkok multi-split klímával felszerelve
- Napelemrendszer előkészítéssel
- Ipari beton padozat, 20 cm vastagságban
- 12 cm hőszigetelt szendvicspanel homlokzat és panelburkolat
- Hőszigetelt műanyag nyílászárók, bukó-nyíló vasalattal, 3 rétegű üvegezéssel
- Antracit színű ipari kapuk (Alutech vagy ezzel egyenértékű)
- Felülvilágító polikarbonát sávok a természetes fényért
- Hörmann ZK típusú belső ajtók
- 4 X 4,5 m-es szekcionált ipari kapuk
- Saját parkolók, egyedi mérőórás közművekkel
- Bővíthető ipari áramkapacitás

Elhelyezkedés: könnyen megközelíthető, fő közlekedési útvonalak közelében
Hasznosítás: logisztika, raktározás, ipari tevékenység
Befektetőknek ideális – a projekt akár részben, akár egészben értékesíthető.

Amennyiben hirdetésem felkeltette érdeklődését, várom hívását a hét bármely napján.
Tóth Péter

Tóth Péter

Hívjon bizalommal

+36-30-237-Mutasd!

Beszélt nyelvek:

További hirdetéseim

Ingatlaniroda
GDN Ingatlanhálózat - Sashalom

Küldjön üzenetet

Visszahívást kérek

Hasonló ingatlanok