Eladó Lakás Budapest XIX. kerület - Vas Gereben köz

82 m2Alapterület 3 Szoba
113 900 000 Ft Ár
392767Azonosító
További adatok

Utcai Kilátás

Újszerű Állapot

Tégla Szerkezet

20 m2 Erkély/terasz

Hőszivattyú Fűtés

Összkomfort Komfort

Saját garázs Parkolás

Emelet 2

Van Lift

Kiváló Tömegközlekedés

Amerikai konyhás

Nincs Kertkapcsolat

2024 Építés éve

Közös költség 46 500 Ft

Hitelkalkuláció – a részletekért kattintson valamelyik bank logójára!

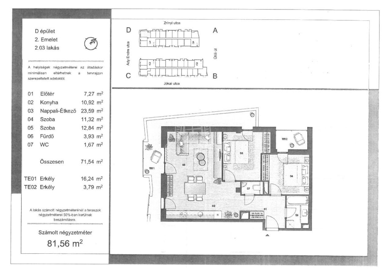
​Modern Elegancia és Parkra Néző Panoráma a XIX. kerületben!

​Eladó a XIX. kerület kedvelt, csendes részén, az Zrínyi utcában egy 2023-as építésű, netto 72 m²-es, 3 szobás, prémium kategóriás tégla lakás. A lakáshoz 2 külön erkély tartozik. Az egyik erkély a nappali, és egy hálószobát körülölelve helyezkedik el, a másik egy különálló, a másik hálószobához tartozó.

Ha nem akarsz felújítással bajlódni, és egy fenntartható, modern otthont keresel, megtaláltad!

​Miért ezt a lakást válaszd?

​Korszerű gépészet: A jövő technológiája! Mennyezeti hűtés-fűtés!
Házközponti őszivattyús rendszer gondoskodik a kellemes hőmérsékletről télen-nyáron. Nincsenek zavaró fűtőtestek, csak tiszta terek és rendkívül alacsony rezsi.

​Óriási Erkély: A 20 m²-es terasz igazi kültéri nappaliként funkcionál, ahonnan közvetlen kilátás nyílik a parkra – tökéletes helyszín a reggeli kávéhoz vagy esti kikapcsolódáshoz.

​Elrendezés: Amerikai konyhás nappali + 2 külön nyíló hálószoba, külön fürdő és WC, ami ideális családoknak vagy Home Office-hoz is.
​Felszereltség: Teljesen gépesített, beépített minőségi konyhabútor és modern műanyag nyílászárók.

​Környék és Életérzés:
​A társasház tiszta, rendezett, a lakóközösség pedig kimondottan kulturált. Bár a környék csendes, a lokáció verhetetlen:
​1-2 perces séta: Buszmegállók, villamos, bankok, iskolák és bevásárlási lehetőségek.
​Zöld környezet, mégis minden karnyújtásnyira a várostól.
​A lakás tehermentes és azonnal költözhető!
​Irányár: [114.000.000] Ft

Extrák: A lakáshoz saját MÉLYGARÁZS BEÁLLÓ (13 NM) és ABLAKOS TÁROLÓ (4,5 NM) is tartozik.
Irányár:
Tárolo:4.500.000 FT
Garázs: 6.200.000 FT
HÍVJON BIZALOMMAL, TEKINTSÜK MEG EGYÜTT!
Molnár Andrea

Molnár Andrea

Hívjon bizalommal

+36-70-548-Mutasd!

Beszélt nyelvek:

További hirdetéseim

Ingatlaniroda
GDN Ingatlanhálózat - Barbara Property
+36-70-490-7364

Küldjön üzenetet

Visszahívást kérek

Hasonló ingatlanok