Eladó Lakás (téglaépítésű) Budapest XIX. kerület - Viola utca

100 m2Alapterület 4 Szoba
125 000 000 Ft Ár
387698Azonosító
További adatok

Udvari Kilátás

Új Állapot

Tégla Szerkezet

20 m2 Erkély/terasz

Hőszivattyú Fűtés

Összkomfort Komfort

Saját garázs Parkolás

Emelet 1

Legfelső emelet

Nincs Lift

Kiváló Tömegközlekedés

Amerikai konyhás

Nincs Kertkapcsolat

2026 Építés éve

Délnyugati Tájolás

Hitelkalkuláció – a részletekért kattintson valamelyik bank logójára!

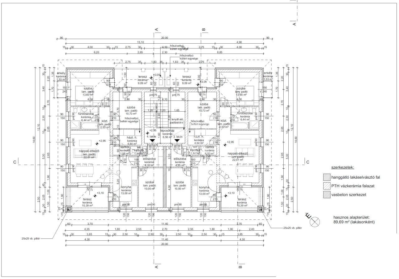
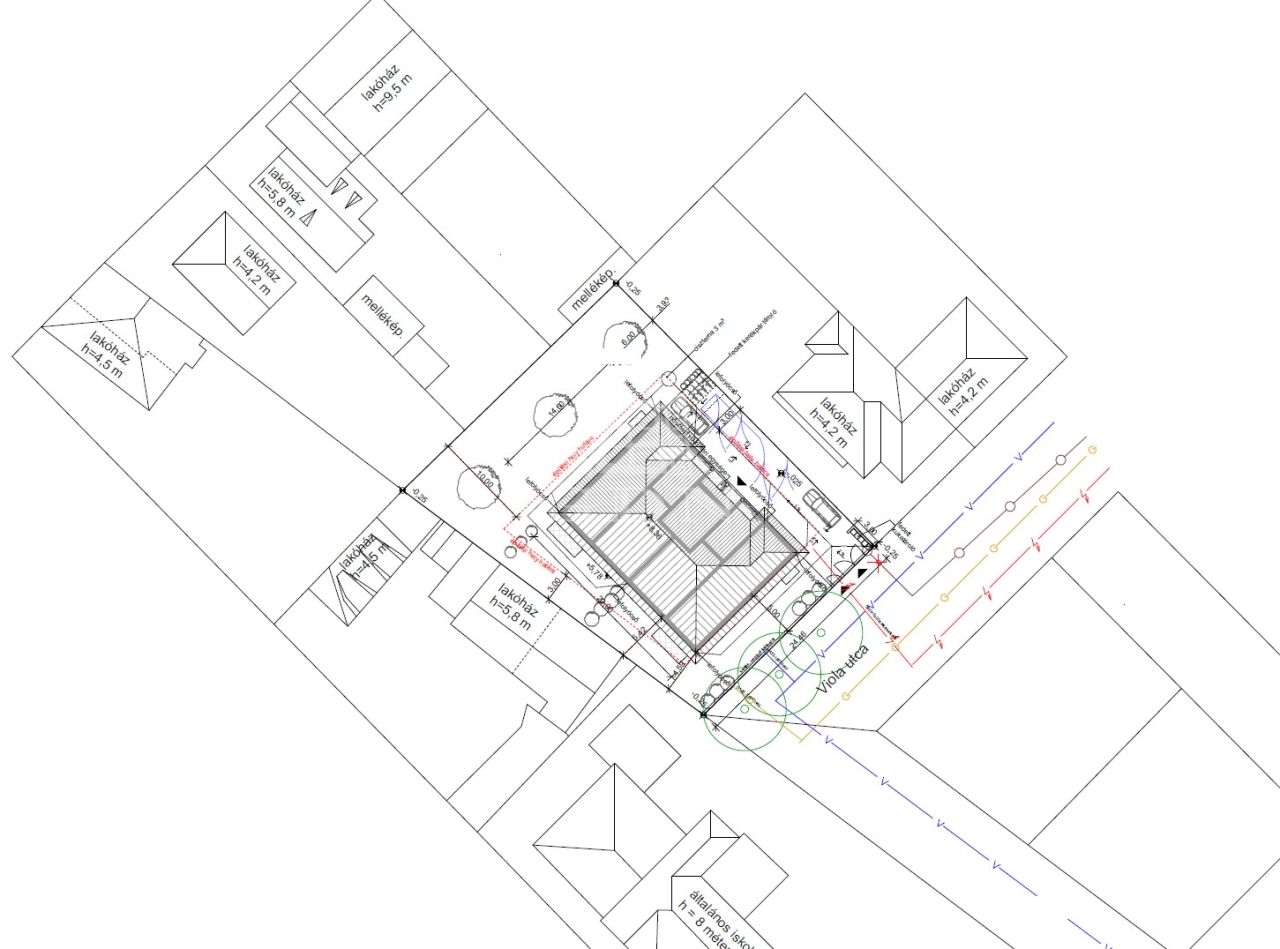
A XIX. kerület kedvelt, kertvárosi részén,csendes zsákutcában, a Viola utcában, 4 lakásos társasházban, kulcsrakészen kínálunk eladásra egy modern, társasházi alapító okirattal külön helyrajzi számon nyilvántartott 1. emeleti lakást.

Főbb adatok:

-Lakás alapterület: 89,69 m² + erkélyek 9,09 és 10,39 m²
-Elosztás: előszoba, nappali + étkező + konyha, 3 hálószoba, fürdőszoba, kamra, háztartási helyiség

Műszaki tartalom:

Szerkezet és szigetelés

-30 cm Porotherm P30 N+F tégla falazat
-Földszinten E-gerendás betonfödém, az emeleten fa födém
-Padlóban 10 cm lépésálló hőszigetelés, az emeleten 2 cm hanggátló lépésálló szigetelés
-Homlokzaton 15 cm EPS hőszigetelés
-Felső födémen 30 cm ásványgyapot hőszigetelés


Energiatakarékos gépészet

-Monoblokkos hőszivattyú, padlófűtéssel
-Klíma
-H tarifás villanyóra

Kényelem és biztonság

-Elektromos, szigetelt alumínium redőnyök
-Riasztórendszer mozgásérzékelőkkel + IP kamerarendszer
-Elektromos kapu és garázsajtó


Választható belső kialakítás

-10.000 Ft/m²-ig választható hideg- és melegburkolatok
-90.000 Ft értékű beltéri ajtók
-250.000.- Ft értékű kád vagy zuhanyzó
-Geberit falsík mögötti WC rendszer

Elhelyezkedés:

-Csendes, kertvárosi környezet
-Rendezett utcafront, aszfaltozott út
-Kiváló közlekedés
-Bevásárlási lehetőségek, iskola, óvoda gyalogos közelségben

Kérésre szívesen küldünk komplett tervdokumentációt, műszaki leírást.

INGYENES hitel tanácsadás, CSOK Plusz ügyintézés!
BANKFÜGGETLEN hitelcentrumunk az összes elérhető bank és hitelintézet ajánlatát versenyezteti az Ön kedvéért, ráadásul DÍJMENTESEN.

- Egyedi, bankfiókban nem elérhető kamat- és díjkedvezmények
- Hitelképesség vizsgálat
- Idő, energia és pénz megtakarítás
- Teljes hivatali ügyintézés

Amennyiben hirdetésem felkeltette az érdeklődését vagy egyéb információra van szüksége hívjon bizalommal!
Horváth Péter

Horváth Péter

Hívjon bizalommal

+36-70-606-Mutasd!

Beszélt nyelvek:

További hirdetéseim

Ingatlaniroda
GDN Ingatlanhálózat - Új Otthon iroda
+36-70-606-2990

Küldjön üzenetet

Visszahívást kérek

Hasonló ingatlanok