Eladó Lakás (téglaépítésű) Budapest XIV. kerület - Modern, napfényes, energiatakarékos

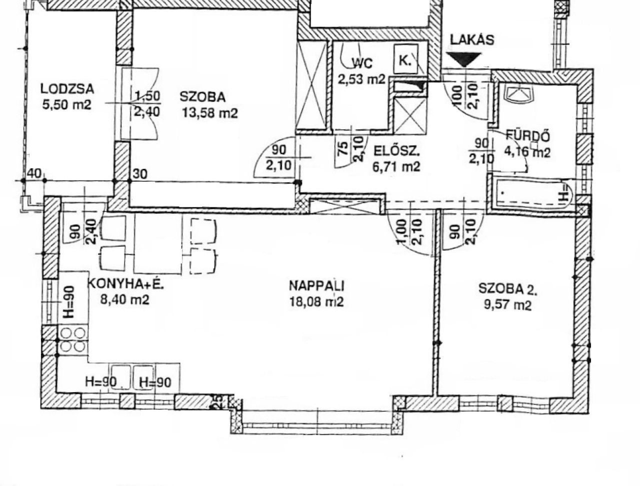
63 m2Alapterület 3 Szoba
99 900 000 Ft Ár
390511Azonosító
További adatok

Utcai Kilátás

Újszerű Állapot

Tégla Szerkezet

5 m2 Erkély/terasz

Hőszivattyú Fűtés

Összkomfort Komfort

Garázs/beálló vásárlás kötelező Parkolás

Emelet 2

Nincs Lift

Kiváló Tömegközlekedés

Amerikai konyhás

Nincs Kertkapcsolat

2013 Építés éve

Délnyugati Tájolás

Hitelkalkuláció – a részletekért kattintson valamelyik bank logójára!

Budapest XIV. kerületében, Alsórákoson megvételre kínáljuk ezt a 63 m² + 5,5 m² erkélyes, 3 szobás, modern és energiatakarékos lakást. Tökéletes választás akár családoknak, pároknak, vagy befektetőknek.

A LAKÁS, ami minden nap mosolyt csal az arcára!
•Átgondolt elosztás – külön nyíló szobák, ideális terekkel.
•Amerikai konyhás nappali: csodás, napfényes, tágas központja az otthonnak.
•Modern gépesített konyha: Gorenje főzőlap, Bosch sütő, mosogatógép, mosó–szárítógép
•Energiahatékony hőszivattyús padlófűtés H-tarifával → rezsicsökkentő álom!
•Klíma, redőny, szúnyogháló, prémium nyílászárók.
•Biztonságos otthon: kiépített riasztórendszer.
•Minőségi fürdőszoba, külön toilette
•Erkély, amely a nappaliból és a hálóból is elérhető – tökéletes reggeli kávéhoz, esti pihenéshez, home office szünethez.

A társasház:
• 2013-ban épült, modern 11 lakásos társasház (10 lakás + 1 üzlethelyiség).
• Rendezett, gondozott, kertész által karbantartott közös kert — ideális gyerekeknek, grillezéshez vagy csak relaxáláshoz.
• Zárt lépcsőház, mélygarázs és tárolók a pinceszinten — extra kényelem és biztonság.

Elhelyezkedés & infrastruktúra
• Szuper közlekedés: 80-as trolimegálló 30 méterre, 3-as és 62-es villamos ~200 méterre — pár perc alatt eljut a város szívébe, a belvárosba és a főbb csomópontokra.
• Bevásárlás, szolgáltatások: 5–10 perc autóval az Árkád Plaza, SUGÁR Üzletközpont, IKEA Örs vezér tere – mind elérhető közelségben.
• Oktatás / családbarát közeg: több bölcsőde, óvoda, iskola 500 m-en belül; közel a Metropolitan Egyetem is, mindössze 10 perc sétára.

Az ingatlanhoz tartozó csomag része egy mélygarázs-parkolóhely és egy 5 m²-es tároló is, amelyek külön értékesítési áron érhetők el.
Ezek ára 9+9MFt.
A lakás tehermentes és rövid időn belül költözhető.
Bereznai Beáta

Bereznai Beáta

Hívjon bizalommal

+36-70-409-Mutasd!

További hirdetéseim

Ingatlaniroda
GDN Ingatlanhálózat - ViBee

Küldjön üzenetet

Visszahívást kérek

Hasonló ingatlanok