Eladó Lakás (téglaépítésű) Budapest VIII. kerület - Német utca

51 m2Alapterület 3 Szoba
69 990 000 Ft Ár
391294Azonosító
További adatok

Udvari Kilátás

Felújított Állapot

Tégla Szerkezet

Elektromos Fűtés

Dupla komfort Komfort

Utcán, közterületen Parkolás

Emelet Földszint

Nincs Lift

Kiváló Tömegközlekedés

Amerikai konyhás

Nincs Kertkapcsolat

1915 Építés éve

Keleti Tájolás

Hitelkalkuláció – a részletekért kattintson valamelyik bank logójára!

Eladó 2 felújított, kulcsrakész lakás a Horváth Mihály térnél!

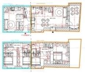
Budapest VIII. kerületében, a Német utcában, hangulatos társasház földszintjén kínálunk eladásra két külön bejáratú, belső kétszintes, teljeskörűen felújított, bútorozott és gépesített lakást.

Mindkettő duplakomfortos, modern padlófűtéssel és inverteres klímával, külön villany- és vízórával.

A földszinti belmagasság 220 cm, a felső szinten 205 cm.

B lakás: 51 m² + 11 m² télikert, (alsó szint: 26 m², felső szint: 25 m²) Ár: 75 M Ft
A lakás: 40 m², (alsó szint: 20,3 m², felső szint: 19,7 m²)
Ár: 65 M Ft

Átadás: 2025. augusztus vége, szeptember eleje.
Referenciafotók az előző lakásokról készültek!
Amennyiben felkeltettem érdeklődését, keressen bizalommal.
Ha nem veszem fel, visszahívom!
ID: 387055
Hallai Mónika

Hallai Mónika

Hívjon bizalommal

+36-30-649-Mutasd!

További hirdetéseim

Ingatlaniroda
GDN Ingatlanhálózat - Best Sellers

Küldjön üzenetet

Visszahívást kérek

Hasonló ingatlanok