Eladó Lakás (téglaépítésű) Budapest VI. kerület - Rózsa utca

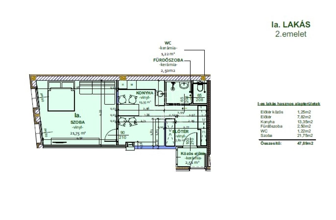
48 m2Alapterület 2 Szoba
99 000 000 Ft Ár
386212Azonosító
További adatok

Utcai Kilátás

Új Állapot

Tégla Szerkezet

Hőszivattyú Fűtés

Összkomfort Komfort

Utcán, közterületen Parkolás

Emelet 3

Legfelső emelet

Van Lift

Kiváló Tömegközlekedés

Amerikai konyhás

Nincs Kertkapcsolat

Tetőtéri ingatlan

2025 Építés éve

Keleti Tájolás

Hitelkalkuláció – a részletekért kattintson valamelyik bank logójára!

MÉG PÁR LAKÁS ELÉRHETŐ!!!

A lakások jelenleg 99%-os készültségi szinten állnak. A használatbavételi engedélyezés folyamatban van. Az építésügyi hatóság engedélyét már megkapták. Az ingatlanok saját albetétként kerülnek bejegyzésre. A fűtésről hőszivattyús rendszer gondoskodik, padlófűtéssel és mennyezeti hűtés-fűtés megoldással. A lakásoknál közös előtér került kialakításra a szomszédos ingatlannal, amely kulturált, zárt, belső közlekedőként funkcionál. Az ingatlan újépítésűnek minősül, és úgynevezett resales konstrukcióban kerül értékesítésre. A szerződéskötés során a beruházó a vevő kijelölési jogát alkalmazza. A társasház teljes felújítása, külső-belső homlokzat megtörtént, lift kialakítása kész, udvar folyamatban, tervezés alatt.

Fizetési ütemezés:
85% a szerződéskötéskor (ebből 5% foglalóként)
15% a birtokbaadáskor esedékes.
Makó Nelly

Makó Nelly

Hívjon bizalommal

+36-70-367-Mutasd!

További hirdetéseim

Ingatlaniroda
GDN Ingatlanhálózat - REGION
+36 1 225 1184

Küldjön üzenetet

Visszahívást kérek

Hasonló ingatlanok