Eladó Lakás Budapest V. kerület - Nyáry Pál utca

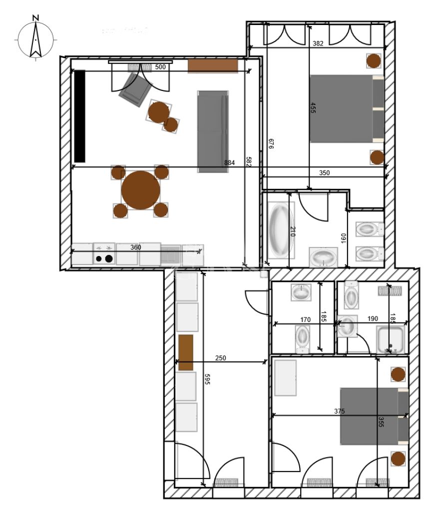
89 m2Alapterület 3 Szoba
249 900 000 Ft Ár
392212Azonosító
További adatok

Utcai Kilátás

Felújított Állapot

Tégla Szerkezet

Gáz (cirkó) Fűtés

Dupla komfort Komfort

Utcán, közterületen Parkolás

Emelet 3

Van Lift

Kiváló Tömegközlekedés

Amerikai konyhás

Nincs Kertkapcsolat

1913 Építés éve

Közös költség 43 000 Ft

Északnyugati Tájolás

Hitelkalkuláció – a részletekért kattintson valamelyik bank logójára!

Exkluzív, azonnal költözhető luxuslakás Budapest belvárosában

Budapest V. kerületének frekventált részén, a Váci utca közvetlen közelében, a Ferenciek tere és a Duna-part pár perc sétára, eladó egy 89 nm-es, teljes körűen felújított, prémium minőségű lakás egy patinás, liftes társasház 3. emeletén.

A 1913-ban épült épület elegáns megjelenésű, rendezett, kiváló presztízsű környezetben található.

Főbb jellemzők:

- 89 négyzetméter: amerikai konyhás nappali + 2 hálószoba
- Duplakomfort - mindkét háló saját fürdőszobával
- Nagy belmagasság, tágas terek
- Prémium burkolatok, chevron mintás tölgyfa parketta
- Teljesen felújított műszaki tartalom (víz-, villanyhálózat)
- Teljesen berendezett és gépesített (AEG készülékek)
- Gáz cirkó fűtés, új, Bosch kondenzációs kazán
- 3 Mitsubishi klímaberendezés, automata árnyékolás
- Azonnal költözhető

Lokáció és környezet:

A lakás csendes belvárosi utcában található, mégis minden karnyújtásnyira elérhető:

Károlyi-kert pár perc sétára
Éttermek, kávézók, üzletek a környéken

Egyetemek a közelben: Eötvös Loránd Tudományegyetem, Budapesti Corvinus Egyetem

Közlekedés:

Kiváló tömegközlekedési kapcsolatok: M3 és M4 metró, villamos: 47, 49, Busz: 5, 7, 8E, 110, 112

A belvárosi elhelyezkedés, a prémium kivitelezés és az egyetemek közelsége miatt értékálló befektetés, rövid- és hosszú távú hasznosításra egyaránt kiváló.
Nádaski Szabina

Nádaski Szabina

Hívjon bizalommal

+36-30-617-Mutasd!

Beszélt nyelvek:

További hirdetéseim

Ingatlaniroda
GDN Ingatlanhálózat - Harmónia

Küldjön üzenetet

Visszahívást kérek

Hasonló ingatlanok