Eladó Házrész Budapest III. kerület - Templom utca

39 m2Alapterület 2 + 1 Szoba
58 500 000 Ft Ár
390546Azonosító
További adatok

350 m2 Telek

Udvari Kilátás

Felújítandó Állapot

Vályog Szerkezet

Gáz (konvektor) Fűtés

Komfort Komfort

Saját beálló Parkolás

Kiváló Tömegközlekedés

Nem Amerikai konyhás

Van Kertkapcsolat

1965 Építés éve

Délkeleti Tájolás

Hitelkalkuláció – a részletekért kattintson valamelyik bank logójára!

BEFEKTETŐKNEK – RITKA LEHETŐSÉG BÉKÁSMEGYER ÓFALUBAN!

Teljesen felújítandó 2 szobás lakás eladó, udvarral rendelkező házban,  Ófaluban, ahol a szomszédok az önkormányzat, így biztos a nyugodt környezet. A ház udvarában összesen 7 lakás található.

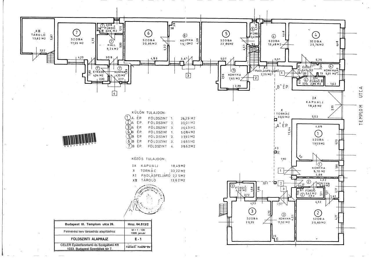
Az alaprajzon a 7-es számmal jelölt lakás, ami ennek  a lakásnak az alaprajza.

A ház csak önkormányzati engedéllyel bontható, de felújításával értékes, kis költségű projekt válhat belőle.

✔ Kis alapterület – alacsony felújítási költség
✔ Összközműves ingatlan
✔ Viszonylag jó állapotú tető és elfogadható nyílászárók
✔ Parkolás az udvarban

Bónusz befektetőknek:
A házhoz ingyenesen használható +71 m² nem lakás célú ingatlan, több tárolóval és egyéb melléképülettel!


Ráadásként van pályázó a telekre, aki tartós bérletet vállalna – ez akár a hitelköltség felét is kitermelheti.

Az ingatlan 3%-os fix Otthon Start hitelre alkalmas lehet.

Ha jó befektetést keresel, amit minimális ráfordítással értéknövelni lehet, ez az egyik legjobb lehetőség Ófaluban!

Több információ miatt, telefonon érdeklődj.
Vereb Attila

Vereb Attila

Hívjon bizalommal

+36-20-263-Mutasd!

További hirdetéseim

Ingatlaniroda
GDN Ingatlanhálózat - Nexus
+36209609602

Küldjön üzenetet

Visszahívást kérek

Hasonló ingatlanok